Ingatlan360 logo
  • Magánszemélyeknek
  • Közvetítőknek
  • Hirdetésfeladás
  • Árak és hirdetési lehetőségek
  • Mennyit ér az ingatlanom?
  • Ingatlan statisztikák

Eladó téglalakás Zalaegerszeg

Zalaegerszeg képe
7
Zalaegerszeg 2. képe
Zalaegerszeg 3. képe7
83,3 M Ft
1 015 854 Ft / m²
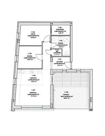
82m2
Alapterület
3
Szoba
Fix 3%-os Otthon Start lakáshitel
Szobák száma
3
Építés éve
2024
Ingatlan állapota
Új
Emelet
1.
Parkolás
Udvarban
Légkondicionáló
Nincs
Közös költség
nincs megadva
Fűtés
nincs megadva
Fal építési anyaga
nincs megadva
Lift
Nincs
Az ingatlanról:
Zala megye, Zalaegerszeg 82m2-es újépítésű belvárosi lakás eladó. A háromszintes, négy lakásos, szigetelt társasház első emeletén található teraszos lakásban egy tágas nappali+konyha+étkező, két hálószoba, melyből az egyik gardróbkapcsolatos, fürdőszoba, illemhelyiség valamint közlekedő került kialakításra. A lakás melegéről padlófűtés, a hűtéséről egyedi vezérlésű klíma gondoskodik. A 2024 nyarán átadásra kerülő lakásban többi között rovarhálóval, motoros redőnyökkel felszerelt homlokzati nyílászárók, kaputelefon, igényes minőségű, a megajánlott termékek közül szabadon választott hideg-és meleg burkolatok, internet-és televízió szolgáltatások előkábelezése stb. szolgálja a lakók kényelmét. A lakáshoz a társasház zárt udvarán felszíni gépjárműbeálló külön megvásárolható (5M Ft+ÁFA). A hirdetésben a jelenlegi (2024.07-08) aktuális bruttó ár szerepel.

Töltsd fel ingatlanhirdetésed ingyenesen!

Ingyenes hirdetésfeladás
Havi több mint egymillió ingatlankereső
Egyszerű és gyors hirdetésfeladás
Hirdetésfeladás
eladó
Melczer IngatlanIngatlanreferens
+36 30...

Töltsd fel ingatlanhirdetésed ingyenesen!

Ingyenes hirdetésfeladás
Havi több mint egymillió ingatlankereső
Egyszerű és gyors hirdetésfeladás
Hirdetésfeladás
Bank360Bank360
Személyi kölcsön
Lakáshitel
Bankszámla
Utasbiztosítás
1 000 000 Ft50 000 000 Ft
6 hónap50 hónap