Ingatlan360 logo
  • Magánszemélyeknek
  • Közvetítőknek
  • Hirdetésfeladás
  • Árak és hirdetési lehetőségek
  • Mennyit ér az ingatlanom?
  • Ingatlan statisztikák

Eladó nyaraló Balatonfenyves

Balatonfenyves képe
37
Balatonfenyves 2. képe
Balatonfenyves 3. képe37
204,3 M Ft
2 106 302 Ft / m²
97m2
Alapterület
21m2
Telekterület
3
Szoba
Szobák száma
3
Építés éve
2024
Ingatlan állapota
Új
Emelet
Földszint
Parkolás
Udvarban
Légkondicionáló
Van
Közös költség
nincs megadva
Fűtés
Elektromos
Fal építési anyaga
Tégla
Lift
Van
Az ingatlanról:
KIZÁRÓLAG a LIDO HOME Balatonboglár Ingatlaniroda kínálatában!
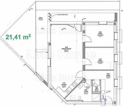
A LIDO HOME Balatonboglár Ingatlaniroda eladásra kínálja BALATONFENYVES kedvelt nyaraló övezetében, ÚJ ÉPÍTÉSŰ, KÖZVETLEN VÍZPARTI TÁRSAS ÜDÜLŐBEN található 77 m2-es földszinti NYARALÓT, a hozzá tartozó 41,37 m2-es TERASZ kapcsolattal, 21,41 m2 saját kertrésszel, BALATONI RÉSZPANORÁMÁS kilátással!
A LIDO HOME BALATONBOGLÁR Ingatlaniroda által kínált, közvetlen VÍZPARTI BALATONFENYVESI TÁRSAS ÜDÜLŐBEN lévő NYARALÓ jellemzői:
- Közvetlen vízparti területen épült, két emeletes, 13 nyaralóból álló, ÚJ ÉPÍTÉSŰ, liftes társas üdülőben található
-Az ingatlan egyedi tervezésű, 60-100 m2-es alapterületű, nagy teraszos, Balatoni panorámás nyaraló egységekből áll
-Minőségi anyagokból épült, éves használati lehetőséggel, így nem csak nyaralóként, lakásként is hasznosítható
-A lépcsőháztér világos, a szél elleni védelem edzett üvegfallal biztosított, a teraszokkal együtt ízléses gránit lap burkolatú
- a hirdetésben szereplő nyaraló földszinti elhelyezkedésű, ÉNY-i tájolású, BALATONI RÉSZPANORÁMÁS NYARALÓ
- az ideális méretű nyaraló 77 m2 - es alapterületű, a hozzá tartozó terasz 41,73 m2 -es, Balatonra néző
-saját, 21,41 m2 területű kertrész tartozik hozzá
-a teraszok intim használatát a felszerelt egyedi lamellás válaszelemek biztosítják
- konyha-előtér, tágas amerikai konyhás nappali, két szoba, közlekedő, fürdőszoba, külön mellékhelyiség kiosztású,
- A Minőségi kivitelezésű ingatlan nyílászárói fehér színűek, három rétegű, hőszigetelt üvegezésűek
-A helyiségek magas kopásállóságú és minőségű olasz kerámialap burkolatúak, a szobák vinyl padlóval burkoltak
- A lakások mennyezeti fűtés - hűtését, lakásonként önálló hőszivattyúk biztosítják, helyiségenként egyedi hőfok szabályozással ( WI-FI-ről otthonról is vezérelhető)
-a nyaralóban az elektromos riasztórendszer és az elektromos redőnyök vezetékelése kiépítésre került
-a teraszokon SL14 alu vázas, ízléses edzett üvegkorlát elemek kerültek felszerelésre
- mindegyik nyaraló egyedi mérőórákkal kerül átadásra, lakásonként 3x16 A áramellátás biztosított
- az irányár tartalmazza az üdülő terület elektromos kapurendszerrel zárt területén kialakított térkő burkolatú kültéri parkolóhely árát
-a tulajdonosok által közösen használható üdülőterület füvesítve, parkosítva kerül átadásra
-az épület használatbavételi engedéllyel történő átadása ez év szeptemberre tervezett
- Fizetési feltételekről, az ingatlannal kapcsolatosan felmerült egyéb kérdésekről személyesen a projekt helyszínén, telefonon vagy e-mailben küldött dokumentációs anyag küldésével tudom tájékoztatni
- Kiváló lokáció: a közelében éttermek, bevásárlási, kikapcsolódási lehetőségek elérhetők, Vasútállomás- a település központja 1000 m-re, Hajókikötő 1200 m-re található.
A hirdetési ár BRUTTO ÁR, mely 27 % Áfá-t tartalmaz! MEGFELELŐ TEVÉKENYSÉGI KÖRREL RENDELKEZŐ CÉGEK SZÁMÁRA AZ ÁFA ÖSSZEGE VISSZAIGÉNYELHETŐ!
Amennyiben a LIDO HOME Ingatlaniroda által kínált VÍZPARTI BALATONFENYVESI EXKLUZÍV MINŐSÉGŰ NYARALÓ, vagy bármely a kínálatunkban található INGATLAN felkeltette érdeklődését, hívjon bármikor a megadott telefonszámon!
Vásárolna, de nincs rá keret? Kollégám díjmentes, bank semleges hitel ügyintézéssel áll rendelkezésére.
LIDO HOME- Ingatlanok egy életen át!

Töltsd fel ingatlanhirdetésed ingyenesen!

Ingyenes hirdetésfeladás
Havi több mint egymillió ingatlankereső
Egyszerű és gyors hirdetésfeladás
Hirdetésfeladás
eladó
Várdai SzabinaIngatlanreferens
+36 70...
iroda logo
Lido Home BalatonboglárIroda további hirdetései

Töltsd fel ingatlanhirdetésed ingyenesen!

Ingyenes hirdetésfeladás
Havi több mint egymillió ingatlankereső
Egyszerű és gyors hirdetésfeladás
Hirdetésfeladás
Bank360Bank360
Személyi kölcsön
Lakáshitel
Bankszámla
Utasbiztosítás
1 000 000 Ft50 000 000 Ft
6 hónap50 hónap