Ingatlan360 logo
  • Magánszemélyeknek
  • Közvetítőknek
  • Hirdetésfeladás
  • Árak és hirdetési lehetőségek
  • Mennyit ér az ingatlanom?
  • Ingatlan statisztikák

Eladó nyaraló Dávod

Dávod képe
26
Dávod 2. képe
Dávod 3. képe26
18 M Ft
236 842 Ft / m²
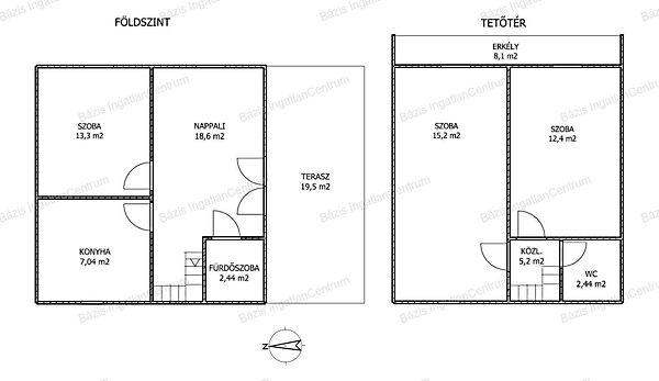
76m2
Alapterület
470m2
Telekterület
3
Szoba
Szobák száma
3
Építés éve
1984
Ingatlan állapota
Felújított
Emelet
nincs megadva
Parkolás
nincs megadva
Légkondicionáló
Nincs
Közös költség
nincs megadva
Fűtés
Egyéb
Fal építési anyaga
nincs megadva
Lift
Nincs
Az ingatlanról:
Bács-Kiskun megye, Dávod Püspölpuszta nyaraló eladó. Fedezze fel ezt a kivételes lehetőséget Dávod Püspökpusztán, ahol eladó egy 76 m2-es nyaraló, mely ideális választás a pihenéshez vagy akár a hosszú távú lakhatáshoz! Az ingatlan egy 470 m2-es telken helyezkedik el, és bár felújítandó állapotú, rengeteg lehetőséget kínál a saját elképzelései megvalósítására. A téglaépítésű ház 1984-ben épült, három szobájával, tágas nappalijával megfelelő teret biztosít a család számára. A komfortos belső tér részben bútorozott, így azonnal birtokba vehető, de a saját stílusának megfelelően is alakíthatja. Fűtése kandallóval megoldott. Az ingatlan tájolása észak-déli, így a természetes fény minden szobát végigkísér. A házhoz egy nagy terasz és egy tágas erkély is kapcsolódik. A parkolás egy garázsban megoldott, így a biztonságos tárolás garantált. Ne hagyja ki ezt a remek lehetőséget, hívjon, hogy megtekintse ezt a nyaralót, amely a pihenés és a kikapcsolódás tökéletes helyszíne lehet! 

Egyéb jellemzők:

Villanyáram: Bevezetve (230 Volt).
Vízellátás: Van, saját vízórával.
Csatornázás: Derítő.
Gázellátás: Gázvezeték a telek előtt.

Töltsd fel ingatlanhirdetésed ingyenesen!

Ingyenes hirdetésfeladás
Havi több mint egymillió ingatlankereső
Egyszerű és gyors hirdetésfeladás
Hirdetésfeladás
eladó
Jánosi BrigittaIngatlanreferens
+36 70...
iroda logo
Bázis IngatlanCentrumIroda további hirdetései

Töltsd fel ingatlanhirdetésed ingyenesen!

Ingyenes hirdetésfeladás
Havi több mint egymillió ingatlankereső
Egyszerű és gyors hirdetésfeladás
Hirdetésfeladás
Bank360Bank360
Személyi kölcsön
Lakáshitel
Bankszámla
Utasbiztosítás
1 000 000 Ft50 000 000 Ft
6 hónap50 hónap