Ingatlan360 logo
  • Magánszemélyeknek
  • Közvetítőknek
  • Hirdetésfeladás
  • Árak és hirdetési lehetőségek
  • Mennyit ér az ingatlanom?
  • Ingatlan statisztikák

Eladó üzlethelyiség Béke, Barcs

Béke, Barcs képe
10
Béke, Barcs 2. képe
Béke, Barcs 3. képe10
6,3 M Ft
48 462 Ft / m²
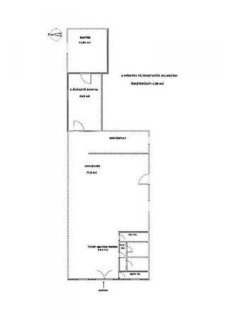
130m2
Alapterület
Szobák száma
nincs megadva
Építés éve
1900
Ingatlan állapota
Felújítandó
Emelet
Földszint
Parkolás
nincs megadva
Légkondicionáló
Nincs
Közös költség
nincs megadva
Fűtés
Egyéb
Fal építési anyaga
Tégla
Lift
Nincs
Az ingatlanról:
Barcson eladó egy korábbi üzlethelyiség Az ingatlan külsőleg belsőleg gyenge állapotú évek óta nincs használatban fűtése nem megoldódott a korábbi cserépkályha is felújításra szorul Az adott ingatlan jelenleg államilag támogatott hitel felvételére nem alkalmas

Töltsd fel ingatlanhirdetésed ingyenesen!

Ingyenes hirdetésfeladás
Havi több mint egymillió ingatlankereső
Egyszerű és gyors hirdetésfeladás
Hirdetésfeladás
eladó
Boda SándorIngatlanreferens
+36 20...
iroda logo
Kaposvár Zárda utca 21 - OTP Ingatlanpont IrodaIroda további hirdetései

Töltsd fel ingatlanhirdetésed ingyenesen!

Ingyenes hirdetésfeladás
Havi több mint egymillió ingatlankereső
Egyszerű és gyors hirdetésfeladás
Hirdetésfeladás
Bank360Bank360
Személyi kölcsön
Lakáshitel
Bankszámla
Utasbiztosítás
1 000 000 Ft50 000 000 Ft
6 hónap50 hónap