Eladó vendéglátói Budakeszi
210 M Ft
1 272 667 Ft / m²
165m2
Alapterület
Szobák száma
nincs megadva
Építés éve
nincs megadva
Ingatlan állapota
Jó állapotú
Emelet
nincs megadva
Parkolás
Udvarban
Légkondicionáló
Nincs
Közös költség
nincs megadva
Fűtés
Gáz (cirkó)
Fal építési anyaga
Könnyűszerkezet
Lift
Nincs
Az ingatlanról:
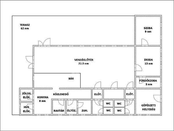
Budakeszin nagy forgalmú helyen, de parkosított környezetben tovább bővíthető étterem nagy kerttel eladó.
A jó állapotú étterem 2004-ben épült, könnyűszerkezetes, fedett bruttó alapterülete 165 nm, + részben fedett terasz 60 nm. HACCP tanúsítvánnyal rendelkező vendéglátóhely, jelen kialakításában 45-50 fő befogadására alkalmas.
Az épületben van egy 30 nm-es iroda fürdőszobával, mely önálló lakrésznek is használható.
A telek 1951 nm-es, automata öntözőrendszerrel ellátott.
Parkolási lehetőség: 8 gépkocsi részére zárt parkoló.
A terület maximális beépíthetősége 25% , azaz 487 nm. A területen a vendéglátó építményen kívül létesíthető sportolási célú, valamint az azzal szorosan összefüggő kereskedelmi, szállás-szolgáltató létesítmények. ...TOVÁBBI, TÖBBEZRES INGATLAN KÍNÁLAT: www.gdn-ingatlan.hu - GDN azonosító: 326188
A jó állapotú étterem 2004-ben épült, könnyűszerkezetes, fedett bruttó alapterülete 165 nm, + részben fedett terasz 60 nm. HACCP tanúsítvánnyal rendelkező vendéglátóhely, jelen kialakításában 45-50 fő befogadására alkalmas.
Az épületben van egy 30 nm-es iroda fürdőszobával, mely önálló lakrésznek is használható.
A telek 1951 nm-es, automata öntözőrendszerrel ellátott.
Parkolási lehetőség: 8 gépkocsi részére zárt parkoló.
A terület maximális beépíthetősége 25% , azaz 487 nm. A területen a vendéglátó építményen kívül létesíthető sportolási célú, valamint az azzal szorosan összefüggő kereskedelmi, szállás-szolgáltató létesítmények. ...TOVÁBBI, TÖBBEZRES INGATLAN KÍNÁLAT: www.gdn-ingatlan.hu - GDN azonosító: 326188
Töltsd fel ingatlanhirdetésed ingyenesen!
Ingyenes hirdetésfeladás
Havi több mint egymillió ingatlankereső
Egyszerű és gyors hirdetésfeladás
Töltsd fel ingatlanhirdetésed ingyenesen!
Ingyenes hirdetésfeladás
Havi több mint egymillió ingatlankereső
Egyszerű és gyors hirdetésfeladás
Személyi kölcsön
Lakáshitel
Bankszámla
Utasbiztosítás
1 000 000 Ft50 000 000 Ft
6 hónap50 hónap