Ingatlan360 logo
  • Magánszemélyeknek
  • Közvetítőknek
  • Hirdetésfeladás
  • Árak és hirdetési lehetőségek
  • Mennyit ér az ingatlanom?
  • Ingatlan statisztikák

Eladó vendéglátói Dunapataj

Dunapataj képe
11
Dunapataj 2. képe
Dunapataj 3. képe11
219 M Ft
655 689 Ft / m²
334m2
Alapterület
Szobák száma
nincs megadva
Építés éve
nincs megadva
Ingatlan állapota
Felújított
Emelet
Földszint
Parkolás
nincs megadva
Légkondicionáló
Nincs
Közös költség
nincs megadva
Fűtés
Egyéb
Fal építési anyaga
Egyéb
Lift
Nincs
Az ingatlanról:
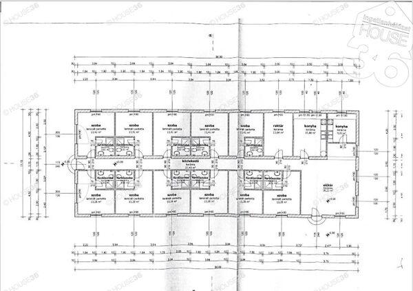
Eladó egész évben működő Panzió Dunapatajon a Szelídi tó közvetlen közelében A 11 szobás Panzió 2007 ben lett építve és 2019 ben teljes felújításon esett át Hatalmas közösségi terek jellemzik Az irányár tartalmazza a teljes bútorzatot Jellemzők: Tégla 11 szoba minden szobához tartozik fürdőszoba Étkező Hatalmas terasz Jakuzzi Műanyag nyílászárók redőnnyel és szúnyoghálóval Privát parkoló Szabad strand 50 m Minden szobában hűtő fűtő klíma Kamerarendszer Automata öntözőrendszer ​ Figyelem az adatalap megbízónktól kapott adatok alapján készült pontosságáért felelősséget nem tudunk vállalni A HOUSE36 kínálatában található összes ingatlannal kapcsolatban tudok felvilágosítást nyújtani Hívjon bizalommal Szolgáltatásaink kereső ügyfeleink részére INGYENESEK Az iroda legfrissebb aktuális kínálatát a HOUSE36 saját weboldalán találja

Töltsd fel ingatlanhirdetésed ingyenesen!

Ingyenes hirdetésfeladás
Havi több mint egymillió ingatlankereső
Egyszerű és gyors hirdetésfeladás
Hirdetésfeladás
eladó
dr. Lévai AnitaIngatlanreferens
+36 30...
iroda logo
HOUSE36 IngatlanhálózatIroda további hirdetései

Töltsd fel ingatlanhirdetésed ingyenesen!

Ingyenes hirdetésfeladás
Havi több mint egymillió ingatlankereső
Egyszerű és gyors hirdetésfeladás
Hirdetésfeladás
Bank360Bank360
Személyi kölcsön
Lakáshitel
Bankszámla
Utasbiztosítás
1 000 000 Ft50 000 000 Ft
6 hónap50 hónap