Eladó vendéglátói BEFEKTETŐK FIGYELEM! 6, Fót
209 M Ft
856 557 Ft / m²
244m2
Alapterület
440m2
Telekterület
12
Szoba
Szobák száma
12
Építés éve
nincs megadva
Ingatlan állapota
Felújított
Emelet
nincs megadva
Parkolás
Udvarban
Légkondicionáló
Nincs
Közös költség
nincs megadva
Fűtés
Cirkófűtés
Fal építési anyaga
Tégla
Lift
Nincs
Az ingatlanról:
NEM HISZI EL!!! SZÁMOLJON!
FÓTON!!! CSALÁDI HÁZBAN 6 FELÚJÍTOTT LAKÁS!!!
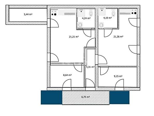
Budapesttől 4 km-re, KERTVÁROSI, CSENDES környezetben, egy 440 nm-es telken, teljes közmű ellátottsággal, 6 LAKÁSOS családi ház eladó. Az épület 1973-ban épült és
2019-től 2022-ig teljes átépítésen, korszerűsítésen, felújításon esett át. A 6 lakás újszerű állapotban van. Amerikai konyhás + nappali, hálószobás lakások almérővel felszereltek. Az ingatlanokat jelenleg is bérlők lakják.
- szuterén lakások: 39.42 m2, 39,42 m2
- földszinti lakások: 35.32 m2, 37.57 m2
- tetőtéri lakások: 37.36 m2, 34.92 m2
A ház további jellemzői:
- 6 LAKÁSOS CSALÁDI HÁZ
- PER- és TEHERMENTES
- CSENDES KERTVÁROSI KÖRNYEZET
- födém: vasbeton
- tető: cserép
- falazat: 38-as tégla + 15 cm szigetelés
- terasz
- minden szoba világos
- zuhanyzós fürdőszobák
- puffertartály (500 liter)
- padlófűtés
- minden lakásban klíma
- műanyag nyílászárók (redőnnyel felszerelve)
Parkolás: a telken felszíni parkolók (4-5 db.)
Fűtése: cirkó gázkazán (Ariston 28 KW)
Közlekedés: jó (buszok: 308, 309, 310, 311)
Fótújfalu vasútállomásról 15 perc alatt a Nyugati pályaudvarra érkezik.
Autóval elérhető pár perc alatt az M2-es, M3-as és az M0-ás autópálya.
Közelben: AUCHAN, DECATHLON, BAUHAUS, KFC, LIDL, ALDI, bevásárlási lehetőségek, óvoda, iskola, bankok, posta, gyógyszertár stb.
Ügyfeleink részére BANKFÜGGETLEN hitelügyintéző kollegáink szívesen nyújtanak segítséget, hitellel vagy akár CSOK-kal kapcsolatban is!
Amennyiben felkeltettem az érdeklődését vagy bármely további kérdése lenne, keressen bizalommal.
Akár hétvégén is!
CSA ...TOVÁBBI, TÖBBEZRES INGATLAN KÍNÁLAT: www.gdn-ingatlan.hu - GDN azonosító: 368183
FÓTON!!! CSALÁDI HÁZBAN 6 FELÚJÍTOTT LAKÁS!!!
Budapesttől 4 km-re, KERTVÁROSI, CSENDES környezetben, egy 440 nm-es telken, teljes közmű ellátottsággal, 6 LAKÁSOS családi ház eladó. Az épület 1973-ban épült és
2019-től 2022-ig teljes átépítésen, korszerűsítésen, felújításon esett át. A 6 lakás újszerű állapotban van. Amerikai konyhás + nappali, hálószobás lakások almérővel felszereltek. Az ingatlanokat jelenleg is bérlők lakják.
- szuterén lakások: 39.42 m2, 39,42 m2
- földszinti lakások: 35.32 m2, 37.57 m2
- tetőtéri lakások: 37.36 m2, 34.92 m2
A ház további jellemzői:
- 6 LAKÁSOS CSALÁDI HÁZ
- PER- és TEHERMENTES
- CSENDES KERTVÁROSI KÖRNYEZET
- födém: vasbeton
- tető: cserép
- falazat: 38-as tégla + 15 cm szigetelés
- terasz
- minden szoba világos
- zuhanyzós fürdőszobák
- puffertartály (500 liter)
- padlófűtés
- minden lakásban klíma
- műanyag nyílászárók (redőnnyel felszerelve)
Parkolás: a telken felszíni parkolók (4-5 db.)
Fűtése: cirkó gázkazán (Ariston 28 KW)
Közlekedés: jó (buszok: 308, 309, 310, 311)
Fótújfalu vasútállomásról 15 perc alatt a Nyugati pályaudvarra érkezik.
Autóval elérhető pár perc alatt az M2-es, M3-as és az M0-ás autópálya.
Közelben: AUCHAN, DECATHLON, BAUHAUS, KFC, LIDL, ALDI, bevásárlási lehetőségek, óvoda, iskola, bankok, posta, gyógyszertár stb.
Ügyfeleink részére BANKFÜGGETLEN hitelügyintéző kollegáink szívesen nyújtanak segítséget, hitellel vagy akár CSOK-kal kapcsolatban is!
Amennyiben felkeltettem az érdeklődését vagy bármely további kérdése lenne, keressen bizalommal.
Akár hétvégén is!
CSA ...TOVÁBBI, TÖBBEZRES INGATLAN KÍNÁLAT: www.gdn-ingatlan.hu - GDN azonosító: 368183
Töltsd fel ingatlanhirdetésed ingyenesen!
Ingyenes hirdetésfeladás
Havi több mint egymillió ingatlankereső
Egyszerű és gyors hirdetésfeladás
Töltsd fel ingatlanhirdetésed ingyenesen!
Ingyenes hirdetésfeladás
Havi több mint egymillió ingatlankereső
Egyszerű és gyors hirdetésfeladás
Személyi kölcsön
Lakáshitel
Bankszámla
Utasbiztosítás
1 000 000 Ft50 000 000 Ft
6 hónap50 hónap