Eladó üzlethelyiség Mátraterenye
30 M Ft
168 539 Ft / m²
178m2
Alapterület
400m2
Telekterület
Szobák száma
nincs megadva
Építés éve
1980
Ingatlan állapota
Jó állapotú
Emelet
nincs megadva
Parkolás
Nincs
Légkondicionáló
Nincs
Közös költség
nincs megadva
Fűtés
Gáz (cirkó)
Fal építési anyaga
nincs megadva
Lift
Nincs
Az ingatlanról:
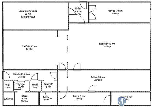
Nógrád megye, Mátraterenye (Homokterenye), főútvonal mellett, 178 nm-es, kiváló állapotú, felújított, tehermentes, azonnal birtokba vehető üzlethelyiség eladó!
A korábban élelmiszerboltként és fagyizóként üzemelő ingatlan, bármely raktározási, termelő, kereskedelmi- és szolgáltató tevékenység végzésére kiválóan alkalmas.
Felújított állapotú, költségmentes, külső szigeteléssel ellátott, előírás szerinti személyzeti helyiségekkel, raktárakkal, rakodási útvonalakkal rendelkezik.
Parkolás az üzlet mellett található parkolóban megoldott.
A közelben számos lakóépület, buszmegálló, horgásztó, polgármesteri hivatal található. jó közlekedés, új nyílászárók, udvari gépjárműbeálló lehetőség, klíma, külső hőszigetelés, riasztó rendszer, új villamoshálózat
(További képekért és információkért kérem hívjon!)
A korábban élelmiszerboltként és fagyizóként üzemelő ingatlan, bármely raktározási, termelő, kereskedelmi- és szolgáltató tevékenység végzésére kiválóan alkalmas.
Felújított állapotú, költségmentes, külső szigeteléssel ellátott, előírás szerinti személyzeti helyiségekkel, raktárakkal, rakodási útvonalakkal rendelkezik.
Parkolás az üzlet mellett található parkolóban megoldott.
A közelben számos lakóépület, buszmegálló, horgásztó, polgármesteri hivatal található. jó közlekedés, új nyílászárók, udvari gépjárműbeálló lehetőség, klíma, külső hőszigetelés, riasztó rendszer, új villamoshálózat
(További képekért és információkért kérem hívjon!)
Töltsd fel ingatlanhirdetésed ingyenesen!
Ingyenes hirdetésfeladás
Havi több mint egymillió ingatlankereső
Egyszerű és gyors hirdetésfeladás
Töltsd fel ingatlanhirdetésed ingyenesen!
Ingyenes hirdetésfeladás
Havi több mint egymillió ingatlankereső
Egyszerű és gyors hirdetésfeladás
Személyi kölcsön
Lakáshitel
Bankszámla
Utasbiztosítás
1 000 000 Ft50 000 000 Ft
6 hónap50 hónap