Ingatlan360 logo
  • Magánszemélyeknek
  • Közvetítőknek
  • Hirdetésfeladás
  • Árak és hirdetési lehetőségek
  • Mennyit ér az ingatlanom?
  • Ingatlan statisztikák

Eladó üzlethelyiség Szív, Budapest, VI. kerület

Szív, Budapest, VI. kerület képe
5
Szív, Budapest, VI. kerület 2. képe
Szív, Budapest, VI. kerület 3. képe5
135 M Ft
633 803 Ft / m²
213m2
Alapterület
Szobák száma
nincs megadva
Építés éve
1920
Ingatlan állapota
Felújított
Emelet
Földszint
Parkolás
nincs megadva
Légkondicionáló
Nincs
Közös költség
nincs megadva
Fűtés
Gáz (egyedi)
Fal építési anyaga
Tégla
Lift
Nincs
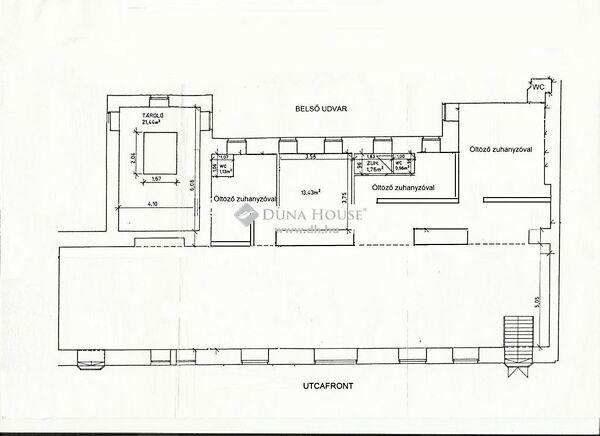
Az ingatlanról:
Eladó a Terézváros szívében a Szív itcában Heidlberr Vilmos tervezte szecessziós bérházbanegy félszuterén üzlethelyiség 213nm 2017 ben teljeskörűen felújították jelenlegi tulajdonosai A felújítás magában foglalta a víz vezetékek cseréjét a gáz kazán felújítását a csatorna és a burkolatok cseréjét A hatalmas egyterű edzőterem mellett őltőzők mosdók wc k teszik komfortossá A város minden pontjáról kíváló a közlekedés Kodály Köröng Andrássy út Hunyadi tér Közelben éttermek iskolák ELTE Pedagógiai és Pszichológiai Kara Bábszinház Terror Háza Ajánlom befektetési üzleti céllal

Töltsd fel ingatlanhirdetésed ingyenesen!

Ingyenes hirdetésfeladás
Havi több mint egymillió ingatlankereső
Egyszerű és gyors hirdetésfeladás
Hirdetésfeladás
eladó
Gosztonyi ÉvaIngatlanreferens
+36 30...

Töltsd fel ingatlanhirdetésed ingyenesen!

Ingyenes hirdetésfeladás
Havi több mint egymillió ingatlankereső
Egyszerű és gyors hirdetésfeladás
Hirdetésfeladás
Bank360Bank360
Személyi kölcsön
Lakáshitel
Bankszámla
Utasbiztosítás
1 000 000 Ft50 000 000 Ft
6 hónap50 hónap