Ingatlan360 logo
  • Magánszemélyeknek
  • Közvetítőknek
  • Hirdetésfeladás
  • Árak és hirdetési lehetőségek
  • Mennyit ér az ingatlanom?
  • Ingatlan statisztikák

Eladó üzlethelyiség XI., Budapest, XI. kerület

XI., Budapest, XI. kerület képe
8
XI., Budapest, XI. kerület 2. képe
XI., Budapest, XI. kerület 3. képe8
199 M Ft
789 683 Ft / m²
252m2
Alapterület
Szobák száma
nincs megadva
Építés éve
nincs megadva
Ingatlan állapota
Felújítandó
Emelet
nincs megadva
Parkolás
Udvarban
Légkondicionáló
Nincs
Közös költség
nincs megadva
Fűtés
nincs megadva
Fal építési anyaga
Tégla
Lift
Nincs
Az ingatlanról:
Eladó élelmiszerüzlet a XI. kerületben!

Az üzlet frekventált helyen van közel 724m2 telekterületen helyezkedik el. Jó parkolási lehetőség és közvetlen buszmegálló közelséggel rendelkezik.

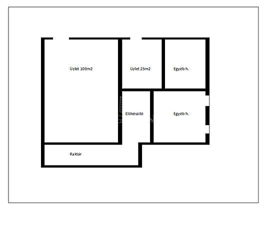
Alapterület: 252m2 -270m2
• Üzlet: 120m2
• Raktár: 150m2
• Egyedi: 60m2

Az élelmiszerüzlet 35 éve folyamatos működését a bejáratott vásárlóközönség és az átmenő forgalom biztosítja.

A kereskedelmi egység nyereségesen működik, alkalmas a jelenlegi tevékenység folytatására vagy más kereskedelmi tevékenység működtetésére.

Az ingatlan fejlesztés estén ipari célű felhasználás esetén 3 – lakóingatlan estén 1 szinttel bővíthető.

Az eladási ár tartalmazza az üzletberendezését is.

Az ingatlan részletes ismertetése és bemutatása előre egyeztetett időpontban lehetséges, melyet nagyon rugalmasan kezelünk, akár HÉTVÉGÉN is.
Amennyiben felkeltette az érdeklődését, további kérdéseivel kapcsolatban várom jelentkezését! ...TOVÁBBI, TÖBBEZRES INGATLAN KÍNÁLAT: www.gdn-ingatlan.hu - GDN azonosító: 371649

Töltsd fel ingatlanhirdetésed ingyenesen!

Ingyenes hirdetésfeladás
Havi több mint egymillió ingatlankereső
Egyszerű és gyors hirdetésfeladás
Hirdetésfeladás
eladó
László IstvánIngatlanreferens
+36 30...
iroda logo
GDN IngatlanhálózatIroda további hirdetései

Töltsd fel ingatlanhirdetésed ingyenesen!

Ingyenes hirdetésfeladás
Havi több mint egymillió ingatlankereső
Egyszerű és gyors hirdetésfeladás
Hirdetésfeladás
Bank360Bank360
Személyi kölcsön
Lakáshitel
Bankszámla
Utasbiztosítás
1 000 000 Ft50 000 000 Ft
6 hónap50 hónap