Ingatlan360 logo
  • Magánszemélyeknek
  • Közvetítőknek
  • Hirdetésfeladás
  • Árak és hirdetési lehetőségek
  • Mennyit ér az ingatlanom?
  • Ingatlan statisztikák

Kiadó telek Győr

Győr képe
5
Győr 2. képe
Győr 3. képe5
26 E Ft
Ár
1818m2
Alapterület
Szobák száma
nincs megadva
Építés éve
nincs megadva
Ingatlan állapota
nincs megadva
Emelet
nincs megadva
Parkolás
nincs megadva
Légkondicionáló
Nincs
Közös költség
nincs megadva
Fűtés
nincs megadva
Fal építési anyaga
nincs megadva
Lift
Nincs
Az ingatlanról:
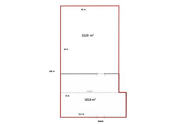
Győr Likócs városrészében, az M1-es autópályáról könnyen megközelíthető helyen kínálok kamionparkoltatási lehetőséget 1818 m2-es területen.

A kamionparkoló díja: 26.000 Ft/kamion/hó + ÁFA.

A terület egyben is bérelhető, ennek bérleti díja 500 Ft/m2/hó + ÁFA.
Az ingatlannal határos egy másik nagyobb terület, melynek nagysága 3120 m2, és szintén bérbe vehető, akár egyben is.

Ideális választás lehet kamion- és buszparkolónak vagy ipari telephelynek egyaránt!

Kérdés esetén hívjon bizalommal!

A jelen hirdetésben rögzített, az ingatlannal kapcsolatos adatok, információk a Megbízó tájékoztatása alapján kerültek meghatározásra.

Töltsd fel ingatlanhirdetésed ingyenesen!

Ingyenes hirdetésfeladás
Havi több mint egymillió ingatlankereső
Egyszerű és gyors hirdetésfeladás
Hirdetésfeladás
eladó
HD RealtyIngatlanreferens
+36 30...

Töltsd fel ingatlanhirdetésed ingyenesen!

Ingyenes hirdetésfeladás
Havi több mint egymillió ingatlankereső
Egyszerű és gyors hirdetésfeladás
Hirdetésfeladás
Bank360Bank360
Személyi kölcsön
Lakáshitel
Bankszámla
Utasbiztosítás
1 000 000 Ft50 000 000 Ft
6 hónap50 hónap