Ingatlan360 logo
  • Magánszemélyeknek
  • Közvetítőknek
  • Hirdetésfeladás
  • Árak és hirdetési lehetőségek
  • Mennyit ér az ingatlanom?
  • Ingatlan statisztikák

Kiadó ipari Dunaharaszti

Dunaharaszti képe
4
Dunaharaszti 2. képe
Dunaharaszti 3. képe4
2,1 M Ft
2 335 Ft / m²
907m2
Alapterület
900m2
Telekterület
Szobák száma
nincs megadva
Építés éve
nincs megadva
Ingatlan állapota
nincs megadva
Emelet
nincs megadva
Parkolás
nincs megadva
Légkondicionáló
Nincs
Közös költség
nincs megadva
Fűtés
nincs megadva
Fal építési anyaga
nincs megadva
Lift
Nincs
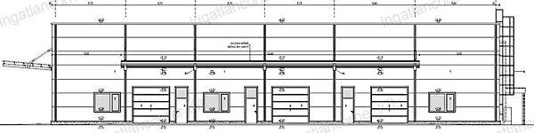
Az ingatlanról:
Dunaharaszti Déli ipar területén kiadó 906nm raktár. Az ingatlan remek elhelyezkedéssel rendelkezik, az 51-es út mellett található, lámpás kereszteződésnél. Aszfalt úton megközelíthető, korlátozás nélkül.

Az épület, betonvázas hőszigetelt csarnok, kéregerősített padlóval, hősszivattyús padlófűtéssel. Belmagasság 6m, LED külső-belső világítás. A csarnok három előtetővel szerelt szekcionált ipari kapun keresztül közelíthető meg. Az alapterület három részre is osztható, akár darabonként is bérelhető.

A csarnok területén belül kialakításra kerül víz/szennyvíz csatlakozás amelyre szaniterblokkal szerelt irodakonténerrel lehet csatlakozni.

A bérleti díj 6,5 €/nm + ÁFA. A rezsi ezen felül fizetendő.

Az M0-ás autó út pár perc alatt elérhető!

Várom hívását! Amennyiben nem tudom felvenni a telefont, hamarosan visszahívom! Hétvégén és esténként is nyugodtan kereshet bizalommal!


Független, ingyenes hitel-CSOK ügyintézéssel segítem kedves Ügyfeleimet, igen kedvező ajánlatokkal folyamatosan!


Ha az ingatlan megvásárlásához el szeretné adni a jelenleg meglévő ingatlanját, ebben is nagyon szívesen segítek. 
Az Ingatlancorner kft. igen alacsony közvetítői díjjal, a legmagasabb színvonalon képviseli az Ön érdekeit.

Ellenőrzött partnerként várom megtisztelő bizalmát! 

https://partner.ingatlan.com/tarr.krisztian

Egyéb jellemzők:

Villanyáram: Bevezetve (230 Volt).
Vízellátás: Víz az épületben.
Csatornázás: Közműhálózatba bekötve.

Töltsd fel ingatlanhirdetésed ingyenesen!

Ingyenes hirdetésfeladás
Havi több mint egymillió ingatlankereső
Egyszerű és gyors hirdetésfeladás
Hirdetésfeladás
eladó
Tarr KrisztiánIngatlanreferens
+36 70...
iroda logo
Ingatlancorner Kft.Iroda további hirdetései

Töltsd fel ingatlanhirdetésed ingyenesen!

Ingyenes hirdetésfeladás
Havi több mint egymillió ingatlankereső
Egyszerű és gyors hirdetésfeladás
Hirdetésfeladás
Bank360Bank360
Személyi kölcsön
Lakáshitel
Bankszámla
Utasbiztosítás
1 000 000 Ft50 000 000 Ft
6 hónap50 hónap