Ingatlan360 logo
  • Magánszemélyeknek
  • Közvetítőknek
  • Hirdetésfeladás
  • Árak és hirdetési lehetőségek
  • Mennyit ér az ingatlanom?
  • Ingatlan statisztikák

Kiadó ipari Üzem, raktár és iroda egy, Törökbálint

Üzem, raktár és iroda egy, Törökbálint képe
20
Üzem, raktár és iroda egy, Törökbálint 2. képe
Üzem, raktár és iroda egy, Törökbálint 3. képe20
2,9 M Ft
1 713 Ft / m²
1700m2
Alapterület
Szobák száma
nincs megadva
Építés éve
nincs megadva
Ingatlan állapota
Felújított
Emelet
nincs megadva
Parkolás
Udvarban
Légkondicionáló
Nincs
Közös költség
nincs megadva
Fűtés
Elektromos
Fal építési anyaga
Vegyes
Lift
Nincs
Az ingatlanról:
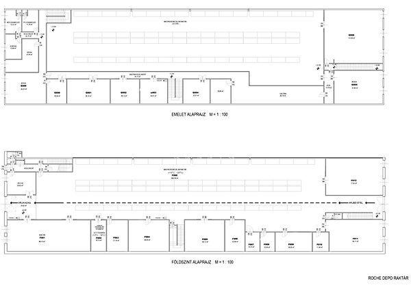
Kiadó ipari ingatlan teljes felszereltséggel Törökbálinton!

Törökbálint iparterületén, kiváló közlekedési adottságokkal, bérbevételre kínálunk egy 1730 m²-es ipari létesítményt, amely sokoldalú felhasználásra alkalmas.

Főbb jellemzők:
• Raktárak és üzem:
• Polcokkal targoncával felszerelt raktár.
• Hidegraktár és hűtőkamra is rendelkezésre áll.
• Kamionok számára 2 rakodási pont rámpával.
• Iroda és tárgyalók:
• Az irodarész teljes körűen felújított, modern, bútorozott és légkondicionált.
• Két szintes kialakítás, amelyben irodák, tárgyalók és raktárak találhatók, valamint műhely vagy üzem is könnyen kialakítható.
• Speciális felszereltség:
• Biztonságos, zárható irattár és trezor, beléptető rendszer kamerával
• Csúszásmentes, mosható műgyanta padló.
• Közlekedés és parkolás:
• Könnyen megközelíthető az M0 autópályáról, súlykorlátozás nélkül.
• 12 személyautó számára kialakított parkoló.

További kérdéseivel vagy egyedi igényekkel kapcsolatban kérem, forduljon hozzám bizalommal! Segítek megtalálni az Ön számára ideális megoldást.

Bérleti díj: 7650 € / hó + ÁFA ...TOVÁBBI, TÖBBEZRES INGATLAN KÍNÁLAT: www.gdn-ingatlan.hu - GDN azonosító: 378003

Töltsd fel ingatlanhirdetésed ingyenesen!

Ingyenes hirdetésfeladás
Havi több mint egymillió ingatlankereső
Egyszerű és gyors hirdetésfeladás
Hirdetésfeladás
eladó
Kádár ImreIngatlanreferens
+36 20...
iroda logo
GDN IngatlanhálózatIroda további hirdetései

Töltsd fel ingatlanhirdetésed ingyenesen!

Ingyenes hirdetésfeladás
Havi több mint egymillió ingatlankereső
Egyszerű és gyors hirdetésfeladás
Hirdetésfeladás
Bank360Bank360
Személyi kölcsön
Lakáshitel
Bankszámla
Utasbiztosítás
1 000 000 Ft50 000 000 Ft
6 hónap50 hónap