Ingatlan360 logo
  • Magánszemélyeknek
  • Közvetítőknek
  • Hirdetésfeladás
  • Árak és hirdetési lehetőségek
  • Mennyit ér az ingatlanom?
  • Ingatlan statisztikák

Kiadó iroda Kis-Hunyad, Miskolc

Kis-Hunyad, Miskolc képe
15
Kis-Hunyad, Miskolc 2. képe
Kis-Hunyad, Miskolc 3. képe15
743 E Ft
3 440 Ft / m²
216m2
Alapterület
Szobák száma
nincs megadva
Építés éve
nincs megadva
Ingatlan állapota
Újszerű
Emelet
Földszint
Parkolás
Nincs
Légkondicionáló
Nincs
Közös költség
nincs megadva
Fűtés
Cirkófűtés
Fal építési anyaga
nincs megadva
Lift
Nincs
Az ingatlanról:
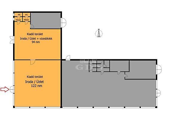
Kitűnő elhelyezkedésű, újszerű esztétikai és műszaki állapotú, 216 nm-es iroda/üzlethelyiség kiadó!

Az ingatlan Miskolcon, a Kis-Hunyad utcában, a belvárostól pár percre található.
Az iroda fszt+1 emelet tagoltságú, utcafrontja nagy üvegfelülettel rendelkezik, így kiválóan reklámozható.
Az ingatlan magas minőségű nyílászárókkal és beltéri ajtókkal szerelt, a gazdaságos fűtést gázcirkó kazán látja el radiátoros hőleadással, valamint a helyiségek légkondicionálóval is fűthetők és hűthetők.
Az ingatlan irodai célon kívül alkalmas lehet pl. magánrendelőnek, vagy bemutatóteremnek is.
Az épület közvetlen parkolási lehetőséggel rendelkezik.

Igény szerint a méret 366 nm-ig bővíthető, mely 244 nm földszinti, üvegportálos üzlethelyiséget, valamint 122 nm emeleti irodákat tartalmazhat.

Ár: 3440 Ft/nm+Áfa/hó (rezsiköltséget az ár tartalmazza).
A hirdetésben megadott bérleti díj a rezsiköltséget tartalmazza!

Érdeklődése esetén további információkért és megtekintés egyeztetéséhez, keressen bizalommal!

Ha eladó vagy kiadó ingatlana van és segítségre szorul az ingatlanpiacon, keresse irodánkat!
Hitel, CSOK, értékesítés, értékbecslés és minden, ami ingatlan! ...TOVÁBBI, TÖBBEZRES INGATLAN KÍNÁLAT: www.gdn-ingatlan.hu - GDN azonosító: 386567

Töltsd fel ingatlanhirdetésed ingyenesen!

Ingyenes hirdetésfeladás
Havi több mint egymillió ingatlankereső
Egyszerű és gyors hirdetésfeladás
Hirdetésfeladás
eladó
Sipos ImreIngatlanreferens
+36 30...
iroda logo
GDN IngatlanhálózatIroda további hirdetései

Töltsd fel ingatlanhirdetésed ingyenesen!

Ingyenes hirdetésfeladás
Havi több mint egymillió ingatlankereső
Egyszerű és gyors hirdetésfeladás
Hirdetésfeladás
Bank360Bank360
Személyi kölcsön
Lakáshitel
Bankszámla
Utasbiztosítás
1 000 000 Ft50 000 000 Ft
6 hónap50 hónap