Ingatlan360 logo
  • Magánszemélyeknek
  • Közvetítőknek
  • Hirdetésfeladás
  • Árak és hirdetési lehetőségek
  • Mennyit ér az ingatlanom?
  • Ingatlan statisztikák

Kiadó üzlethelyiség Budapest, VII. kerület

Budapest, VII. kerület képe
12
Budapest, VII. kerület 2. képe
Budapest, VII. kerület 3. képe12
1,3 M Ft
13 093 Ft / m²
97m2
Alapterület
Szobák száma
nincs megadva
Építés éve
2014
Ingatlan állapota
Jó állapotú
Emelet
Földszint
Parkolás
Parkoló
Légkondicionáló
Nincs
Közös költség
nincs megadva
Fűtés
Házközponti (egyedi mérővel)
Fal építési anyaga
Tégla
Lift
Nincs
Az ingatlanról:
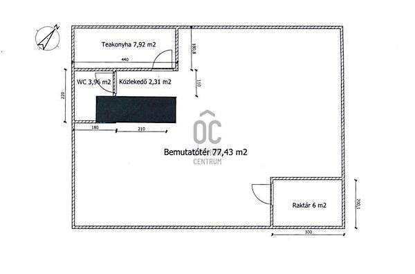
Utcafronti nagy portállal rendelkező földszinti 97 m2 48 m2 es üzlethelyiség KIADÓ a VII kerületben Széles utcafronttal rendelkező üvegportálos belső kétszintes üzlethelyiség keresi új bérlőjét a VII kerületben a Városliget mellett Ha olyan tágas és világos üzletet keres vállalkozása számára ami modern épületben és frekventált helyen van akkor ezt feltétlenül nézze meg LOKÁCIÓ ÉS KÖZLEKEDÉS: VII kerület Külső Erzsébetváros Kiváló tömegközlekedési kapcsolatok és teljes infrastruktúra a közelben A Garay Center 250 méter A Városliget 400 méter A Récsei Center 10 perc gyalog A Puskás Aréna 15 perc gyalog 300 méter sugarú körön belül több autóbusz és troli megállója elérhető Közvetlen közelben üzletek szolgáltatók kulturális látnivalók vendéglátóhelyek AZ ÉPÜLET: 2014 ben átadott földszint 6 emeletes jó állapotú tégla építésű társasház Az épület külső belső homlokzata kifejezetten jó állapotú Az épület előtt 2 db rakodásra fenntartott hely áll rendelkezésre Parkolás utcán lehetséges fizetős övezetben AZ ÜZLETHELYISÉG: Földszinti belső kétszintes nagy üvegportállal rendelkező ingatlan Alsó szintje 97 m2 es és rendelkezik egy 48 m2 alapterületű teljes értékű állógalériával Azonnal használható állapotban van jelenleg bemutatóteremként üzemel Kiváló az alaprajza tágas és világos jól kihasználható terekkel rendelkezik Felosztása az alsó szinten: bemutatótér teakonyha raktár WC kézmosó Felosztása a galérián: egy légterű iroda tárgyaló raktár Fűtése és melegvíz ellátása házközponti egyedi méréssel Egyedi hűtés fűtés is lehetséges saját hőszivattyúval Nyílászárói fém szerkezetűek Az üzlethelyiség riasztóval felszerelt EGYÉB INFORMÁCIÓK: Az ingatlant jelenleg a tulajdonos használja 2026 január elejétől vehető birtokba A tulajdonos hosszabb távra szeretné bérbe adni Hasznosítás céljából kifejezetten alkalmas kisebb vállalkozásoknak bemutatótermeknek irodának tárolásra Erős szaggal és nagy zajjal járó tevékenységet nem lehet a társasházban folytatni A tulajdonos cég a bérleti díjról ÁFÁ s számlát állít ki A hirdetésben szereplő bérleti díj már az ÁFÁ t is tartalmazza 1 000 000 Ft ÁFA 2 havi kaució szükséges 2 000 000 Ft ÁFA Érdeklődés esetén kérem hívjon bizalommal

Töltsd fel ingatlanhirdetésed ingyenesen!

Ingyenes hirdetésfeladás
Havi több mint egymillió ingatlankereső
Egyszerű és gyors hirdetésfeladás
Hirdetésfeladás
eladó
Toró TímeaIngatlanreferens
+36 70...
iroda logo
XI. kerület - Bicskei utcaIroda további hirdetései

Töltsd fel ingatlanhirdetésed ingyenesen!

Ingyenes hirdetésfeladás
Havi több mint egymillió ingatlankereső
Egyszerű és gyors hirdetésfeladás
Hirdetésfeladás
Bank360Bank360
Személyi kölcsön
Lakáshitel
Bankszámla
Utasbiztosítás
1 000 000 Ft50 000 000 Ft
6 hónap50 hónap