Ingatlan360 logo
  • Magánszemélyeknek
  • Közvetítőknek
  • Hirdetésfeladás
  • Árak és hirdetési lehetőségek
  • Mennyit ér az ingatlanom?
  • Ingatlan statisztikák

Eladó családi ház Gencsapáti

Gencsapáti képe
22
Gencsapáti 2. képe
Gencsapáti 3. képe22
144,5 M Ft
722 679 Ft / m²
200m2
Alapterület
458m2
Telekterület
5
Szoba
Fix 3%-os Otthon Start lakáshitel
Szobák száma
5
Építés éve
2023
Ingatlan állapota
Új
Emelet
Földszint
Parkolás
Parkolóház
Légkondicionáló
Nincs
Közös költség
nincs megadva
Fűtés
Elektromos
Fal építési anyaga
Könnyűszerkezet
Lift
Nincs
Az ingatlanról:
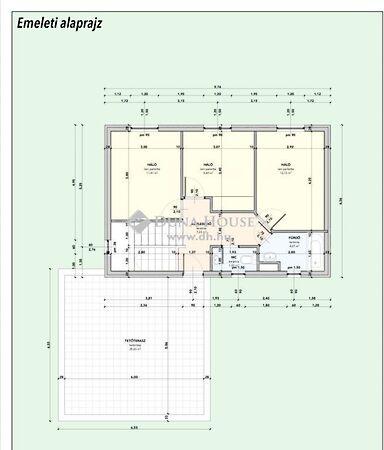
SIP panelből készült ÚJ ÉPÍTÉSŰ családi házak MODERN ÉPÍTÉSI FORMA KORSZERŰ KIVITELEZÉSI TECHNOLÓGIA ALACSONY FENNTARTÁSI KÖLTSÉGEK A lakópark Szombathely és Gencsapáti határán várja új lakóit Zöldmezős beruházásként összesen 16 db könnyűszerkezetes lakóház kerül kialakításra Kiváló fekvésű telkeken építik fel új otthonát a legmodernebb SIP technológiával figyelembe véve az új modern energetikai és építészeti jogszabályokat A hirdetésben szereplő kétszintes ingatlan a PLUTO típusház alapterülete: 139 01 nm 92 75 nm fsz 46 26 nm tetőtér terasz 25 24 nm dupla garázs 36 nm tetőterasz 35 63 nm A telkek összterülete épületenként megoszlik így egy egy épülethez tartozó telekméret várhatóan 438 és 478 m2 közé esik A lakóparkban kényelmesen és stresszmentesen épül meg a családi háza Válasszon 5 korszerű típusház tervből vagy akár megtervezheti egyedi otthonát az Ön igényeire szabva Lakóháza 4 8 hónap alatt gyors és megbízható kivitelezésében a legjobb minőségben kulcsrakészen elkészülhet Az épületek a legmodernebb BB AA AA energetikai osztályba sorolással és ÉMI engedéllyel kerülnek átadásra A könnyűszerkezetes készházak ma Magyarországon egyre jobban elterjedtek Nem csak az energetikai besorolásuk és kivitelezésük érdekében de az ár érték arány figyelembe vétele is komoly szempont Ezek a házak legjobb esetben 6 hónapon belül el tudnak készülni nincs idegeskedés és minden előre tervezhető Kész típustervek alapján de akár egyedi tervek alapján is kivitelezhető Kanadában és az Egyesült Államokban már a legelterjedtebb könnyűszerkezetes házak építési technológiája ami most már Magyarországon is elérhető A SIP egy egyszerű rövidítés ami angolul – Structural Insulated Panel magyarul – Strukturális Szigetelt Panel ami a mai modern építészeti megoldások figyelembevételével egyedi értékei alapján kiemelkedő adottságaival gyors hatékony alacsony energiafelhasználása mellett olcsó és környezetbarát építkezést eredményez A panelek szerkezeti merevsége és a rugalmas kivitelezési feladatok miatt szinte bármilyen építőipari forma kivitelezését lehetővé teszi A SIP PANEL SZERKEZETE: A SIP panel 2 db OSB3 as lemez között elhelyezett EPS hőszigetelő polisztirolhab ami speciális ragasztóanyag felvitele mellett préseléssel összeállított építőelem A MODERN GRAFITOS SIP SZERKEZETRŐL​ 20 KAL JOBB HŐSZIGETELÉSI ÉRTÉK​ A SIP panel a piacon most a legjobb hőszigetelő értékkel bíró építő elem Nem tartalmaz rideg építőanyagot és értékei a mindenkori energetikai szabványoknak megfelelnek Minél kisebb az érték annál nagyobb a hőszigetelése az adott építőanyagnak A hőátbocsátási tényezőt jelölik a számok hogy mennyi hőt enged át az adott építő elem és ezért ha kisebb a szám annál jobb a hőtartási értéke KIMAGASLÓ ENERGETIKAI ÉRTÉK Minden más könnyűszerkezetes házhoz képest energiatakarékosabb és olcsóbb fenntartású és kivitelezésű házak építéshez ajánljuk ENERGIATAKARÉKOSSÁG: Hővezetési tényező 0 032 W m2K Hőátbocsátási tényező 0 17 W mK Energiatakarékosság szempontjából a piac legjobb építőanyaga SZILÁRDSÁG: Függőleges és vízszintes teher szélteher értékei jóval meghaladják az elvártakat 22 24 kN m Ez az érték egy 300km h szélerősség esetén értendő Magyarországon valaha mért legnagyobb szélerősség 150km h volt Könnyen alakítható pehely súlya miatt egyszerűen szerelhető TŰZBIZTONSÁG: Kizárólag nyílt láng esetén égnek de az égéshő elvételét követően önkioltóan viselkednek A termékek égésgátló anyagok hozzáadása mellett készülnek nincs egészségkárosító összetevői Amennyiben Ön egy gondoktól mentes építkezést szeretne és egy új modern energiatakarékos házban szeretne élni úgy ne habozzon keressen minket a részletekért FÜGGŐLEGES RÉTEGRENDI KIALAKÍTÁS SIP PANEL FALAK ESETÉBEN: 1 Termelt talaj 2 Alapbeton statika szerint 3 25 50 23 cm es zsalukő vasalva betonozva – terepszinttől függően 4 15 cm monolit vb aljzatlemez statika szerint 5 1 rtg hideg bitumen kellősítés 6 1 rtg párafékező réteg talajnedvesség elleni védelem modifikált bitumenes lemez függőleges irányban összemelegítve pl : GV45 7 5 cm zártcellás XPS cementkötésű ragasztóba ragasztva dühbelezve 8 6 16 os Talpgerenda alapcsavarral rögzítve 9 6 14 cm es Indítógerenda alapcsavarral és szerelőcsavarral rögzítve 10 16 5 cm SIP panel 1 2 cm OSB3 építőlemez 14 cm Grafitos EPS 1 2 cm OSB3 építőlemez 11 Univerzális nagy tapadóképességű ragasztószalagok páraáteresztő fólia öntapadó csíkkal a teljes felületre 12 0 6 cm Üvegszövet háló cementkötésű ragasztóba ágyazva 13 10cm es aluminium indítóprofil homlokzati szigeteléshez 14 10 cm Grafitos EPS ragasztóhabbal és csavaros kötéssel 15 0 6 cm Üvegszövet háló cementkötésű ragasztóba ágyazva 16 0 3 cm Homlokzati vékonyvakolat színre keverve 17 0 3 cm Lábazati vékonyvakolat színre keverve 18 Technológiai szigetelés párazáró fólia összeragasztva 19 1 rtg tűzgátló Impregnált gipszkarton 20 Fa vázszerkezet 2 5×4 5 cm vízszintes és 2 5×4 5 cm függőleges vázszerkezet 21 1 rtg gipszkarton VÍZSZINTES RÉTEGRENDI KIALAKÍTÁS SIP PANELES HÁZAK ESETÉBEN: 1 Termelt talaj 2 Alapbeton statika szerint 3 25 50 23 cm es zsalukő vasalva betonozva – terepszinttől függően 4 1 rtg függőleges irányú párazárás technológiai szigetelés PE fólia vagy dombornyomott drain lemez 5 Tömörített talajfeltöltés 6 15 cm tömörített kavicságy – gépészeti alapszerelések homokágyban 7 1 rtg PE fólia technológiai szigetelés 8 15 cm monolit vb aljzatlemez statika szerint 9 1 rtg hideg bitumen kellősítés 10 1 rtg párafékező réteg talajnedvesség elleni védelem modifikált bitumenes lemez függőleges irányban összemelegítve pl : GV45 11 10 cm EPS 150 úsztatóréteg hőszigetelés pl : Austrotherm AT N150 12 1 rtg PE fólia vagy hőtükör fólia technológiai szigetelés 13 7 cm úsztatott estrich aljzat 14 1 cm Flexibilis ragasztóhabarcs 15 1 cm Kerámia padlóburkolat színes fugázó habarccsal fugázva A lakóépületbe lakásokba nem szerelnek gázt a kialakítandó fűtés elektromos üzemű 6 FÉLE FŰTÉSI LEHETŐSÉG: 1 Alapfelszereltségben a NordArt Adax Neo Wi Fi fűtőpaneleket szerelnek radiátorok helyett 2 A NordArt Heatcom elektromos padlófűtési rendszert kiegészítő fűtésként ajánljuk a fűtőpanelek mellé vagy akár helyettük is 3 A NordArt Adax Neo és Heatcom elektromos fűtési rendszer kombináltan mely egyben a padozatot is és a légteret is fűti Így kombináltan határozottan magasabb komfortfokozatba kapcsoltunk hiszen minden olyan lehetőséget kihasználunk ami az okos otthonok alapvető igénye 4 Hagyományos radiátoros fűtés elektromos kazánnal szerelve mely a használati meleg vizet is elkészíti 5 Hagyományos radiátoros fűtés elektromos fűtőpatronnal ellátott hőcserélős tartállyal szerelve mely a használati meleg vizet is egyben elkészíti 6 Hagyományos radiátoros fűtés mellett levegő víz hőszivattyús rendszerrel mely hatékonysága messze erőteljes fűtés kialakítására ad lehetőséget elektromos rendszerekkel gondolva További információval személyesen irodáinkban tudunk segíteni Használja ki Ön is az új építésű ingatlanok előnyeit CSOK ILLETÉKMENTESSÉG ÁFAVISSZATÉRÍTÉS Gazdaságos fenntartási költségek saját igények elképzelések megvalósíthatósága Kamattámogatott hitelek igénybevétele Hitelre van szüksége? Vegye igénybe Hitel Centrum szolgáltatásunkat szakmailag magasan képzett tanácsadónk segítségét Ingyenes bank semleges tanácsadás teljes körű ügyintézés További információkért és megtekintésért kérem hívjon vagy írjon e mailt Ne feledje hogy vevőinknek minden szolgáltatásunk INGYENES Érd : Volner Szilveszter Tel : 36 30 633 5085 Referencia szám: PR027779 HZ 17101 IN

Töltsd fel ingatlanhirdetésed ingyenesen!

Ingyenes hirdetésfeladás
Havi több mint egymillió ingatlankereső
Egyszerű és gyors hirdetésfeladás
Hirdetésfeladás
eladó
Volner SzilveszterIngatlanreferens
+36 30...
iroda logo
Duna House SzombathelyIroda további hirdetései

Töltsd fel ingatlanhirdetésed ingyenesen!

Ingyenes hirdetésfeladás
Havi több mint egymillió ingatlankereső
Egyszerű és gyors hirdetésfeladás
Hirdetésfeladás
Bank360Bank360
Személyi kölcsön
Lakáshitel
Bankszámla
Utasbiztosítás
1 000 000 Ft50 000 000 Ft
6 hónap50 hónap