Ingatlan360 logo
  • Magánszemélyeknek
  • Közvetítőknek
  • Hirdetésfeladás
  • Árak és hirdetési lehetőségek
  • Mennyit ér az ingatlanom?
  • Ingatlan statisztikák

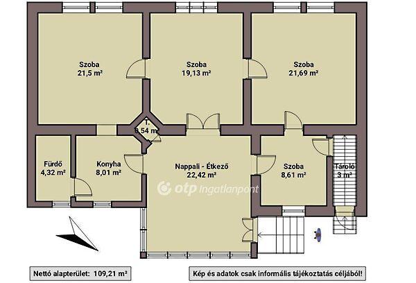
Eladó családi ház Hajdúnánás

Hajdúnánás képe
19
Hajdúnánás 2. képe
Hajdúnánás 3. képe19
35 M Ft
324 074 Ft / m²
108m2
Alapterület
548m2
Telekterület
4
Szoba
Fix 3%-os Otthon Start lakáshitel
Szobák száma
4
Építés éve
1950
Ingatlan állapota
Felújítandó
Emelet
Földszint
Parkolás
Udvarban
Légkondicionáló
Nincs
Közös költség
nincs megadva
Fűtés
Konvektor
Fal építési anyaga
Tégla
Lift
Nincs
Az ingatlanról:
Nagypolgári hangulat kiváló elhelyezkedés óriási lehetőség Hajdúnánáson Hajdúnánás központjának közvetlen közelében csendes mégis aszfaltozott és összközműves utcában kínálunk megvételre egy 108 nm es nagypolgári stílusú téglaépítésű családi házat 548 nm es gondozott gyümölcsfás telken Az ingatlan a felújításra szoruló állapotot nyíltan vállalja ugyanakkor stabil alapokat és olyan adottságokat kínál amelyekből valódi karakteres otthon formálható A tágas belső terek a nagy belmagasság és a természetes fény már most is különleges hangulatot teremtenek A ház főbb jellemzői 4 szoba nappali étkező konyha fürdőszoba és külön WC tárolók A kertben egykori asztalosműhely szőlészeti és borászati tároló valamint 2 garázs található A telken szilvafa barackfák nemes szőlők és egy kb 30 éves málnaültetvény teremti meg a nyugodt zöld környezetet Aki saját kezűleg szeretné megalkotni álomotthonát vagy szereti a kreatív felújításokat ebben az ingatlanban valódi lehetőséget talál Természetesen azok számára is kiváló választás akik szakemberek bevonásával képzelik el a modernizálást Lokáció szempontjából is kiemelkedő: közel a városközpont gyalogosan elérhető óvoda iskola és bevásárlási lehetőségek autópálya könnyen elérhető Hajdúnánás élhető dinamikusan fejlődő szerethető város OTP Banki hátterünknek köszönhetően finanszírozási igényekben pl Otthon Start Hitelprogram Babaváró Falusi CSOK CSOK Plusz Lakáshitel Személyi kölcsön stb illetve biztosítások tekintetében is díjmentesen soron kívüli ügyintézéssel segítem ügyfeleim Referenciaszám: M314139

Töltsd fel ingatlanhirdetésed ingyenesen!

Ingyenes hirdetésfeladás
Havi több mint egymillió ingatlankereső
Egyszerű és gyors hirdetésfeladás
Hirdetésfeladás
eladó
Lipcseiné Kozák JuditIngatlanreferens
+36 20...
iroda logo
Nyíregyháza Bocskai utca 18-20 - OTP Ingatlanpont IrodaIroda további hirdetései

Töltsd fel ingatlanhirdetésed ingyenesen!

Ingyenes hirdetésfeladás
Havi több mint egymillió ingatlankereső
Egyszerű és gyors hirdetésfeladás
Hirdetésfeladás
Bank360Bank360
Személyi kölcsön
Lakáshitel
Bankszámla
Utasbiztosítás
1 000 000 Ft50 000 000 Ft
6 hónap50 hónap