Ingatlan360 logo
  • Magánszemélyeknek
  • Közvetítőknek
  • Hirdetésfeladás
  • Árak és hirdetési lehetőségek
  • Mennyit ér az ingatlanom?
  • Ingatlan statisztikák

Eladó családi ház Pannonhalma

Pannonhalma képe
13
Pannonhalma 2. képe
Pannonhalma 3. képe13
34,9 M Ft
498 571 Ft / m²
70m2
Alapterület
2481m2
Telekterület
2
Szoba
Fix 3%-os Otthon Start lakáshitel
Szobák száma
2
Építés éve
1965
Ingatlan állapota
Felújítandó
Emelet
nincs megadva
Parkolás
Nincs
Légkondicionáló
Nincs
Közös költség
nincs megadva
Fűtés
Gáz (egyedi)
Fal építési anyaga
nincs megadva
Lift
Nincs
Az ingatlanról:
Eladó családi ház Tóthegyen – a Pannonhalmi Főapátság közelében!

Ha egy csendes, zöldövezeti környezetben keres eladó ingatlant, akkor ez a pannonhalmi családi ház kiváló választás lehet az Ön számára!
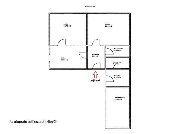
A ház 1965-ben épült egy 2481 m2-es telken. A 70 m²-es lakótér két nagy szobával, konyhával és egy fürdőszobával rendelkezik, így ideális azok számára, akik kisebb, jól élhető otthonra vágynak.

A ház tégla falazattal rendelkezik, fa gerendás födémmel és palafedéssel készült. Teljes felújítást igényel, amely lehetőséget biztosít arra, hogy saját ízlése szerint alakítsa át.
A hozzá tartozó méretes telek rengeteg teret kínál kreatív kerttervezéshez vagy későbbi bővítéshez.
A levendula termesztésnek nagy hagyománya van a faluban, az agroturizmus is nagyon felkapott ezen a környéken!

Pannonhalma városa nemcsak a világörökségi helyszínéről híres, hanem barátságos közösségéről és gyönyörű természeti környezetéről is. Ne hagyja ki ezt a kivételes lehetőséget, hogy egy bájos és békés helyen találjon otthonra!

Érdeklődjön még ma, és tegyen ajánlatot erre a különleges ingatlanra! udvari gépjárműbeálló lehetőség, zöld övezet, szerelőakna
(További képekért és információkért kérem hívjon!)

Töltsd fel ingatlanhirdetésed ingyenesen!

Ingyenes hirdetésfeladás
Havi több mint egymillió ingatlankereső
Egyszerű és gyors hirdetésfeladás
Hirdetésfeladás
eladó
Unger-Takács AnikóIngatlanreferens
+36 70...
iroda logo
Városi IngatlanirodaIroda további hirdetései

Töltsd fel ingatlanhirdetésed ingyenesen!

Ingyenes hirdetésfeladás
Havi több mint egymillió ingatlankereső
Egyszerű és gyors hirdetésfeladás
Hirdetésfeladás
Bank360Bank360
Személyi kölcsön
Lakáshitel
Bankszámla
Utasbiztosítás
1 000 000 Ft50 000 000 Ft
6 hónap50 hónap