Ingatlan360 logo
  • Magánszemélyeknek
  • Közvetítőknek
  • Hirdetésfeladás
  • Árak és hirdetési lehetőségek
  • Mennyit ér az ingatlanom?
  • Ingatlan statisztikák

Eladó ikerház Százhalombatta

Százhalombatta képe
7
Százhalombatta 2. képe
Százhalombatta 3. képe7
80 M Ft
1 052 632 Ft / m²
76m2
Alapterület
400m2
Telekterület
3
Szoba
Fix 3%-os Otthon Start lakáshitel
Szobák száma
3
Építés éve
2026
Ingatlan állapota
Új
Emelet
nincs megadva
Parkolás
Udvarban
Légkondicionáló
Nincs
Közös költség
nincs megadva
Fűtés
Padlófűtés
Fal építési anyaga
Tégla
Lift
nincs megadva
Az ingatlanról:
Hivatkozzon erre, kód: 5057KE

HATALMAS ÁRESÉS! MOST -10 MILLIÓVAL OLCSÓBBAN, 90mFt helyett 80mFt!

- ÚJ ÉPÍTÉSŰ IKERHÁZI LAKÁS

- ÖNÁLLÓ HRSZ

- HŐSZIVATTYÚ PADLÓFŰTÉSSEL

- NAPPALI + 2 SZOBA, TERASZ, UDVARI BEÁLLÓ

- MEGBÍZHATÓ BERUHÁZÓ, SZÁMOS REFERENCIA

Százhalombatta Óváros részén csendes, családi házas övezetben kb. 400m2 saját kerttel rendelkező nappali + 2 szobás, összesen 76m2-es (terasz felével), új építésű ikerházi lakás (3-as épület) leköthető igény szerinti befejezéssel.

Várható átadás: 2026. ősz.

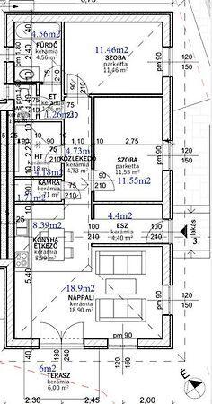
A lakás felosztása a következőképpen alakul (nettó 72.4m2 + 6m2 terasz + kb. 400m2 saját kert): előszoba (4,40m2), konyha (8,39m2), nappali-étkező (18,9m2), kamra (1,71m2),wc (1,26m2), fürdő (4,56m2), háztartási helyiség (4,18m2), közlekedő (4,73m2, 1,26m2), 2 szoba (11,55m2, 11,46m2), terasz (6m2).

Rövid műszaki ismertető: beton alap. Porotherm 30 okostégla főfalak, 15cm-es szigeteléssel. Ytong válaszfalak. Fa födém, 25cm-es fújt cellulóz szigeteléssel. A tető betoncserép fedésű, antracit színben. A nyílászárók műanyag szerkezetűek 3 rétegű szigetelt üvegezéssel, rejtett redőnytok beépítéssel.

A belső ajtók 50.000,-Ft/db áron, míg a hideg és meleg burkolatok 4.000,-Ft/m2 áron vevő által választhatóak.

Fűtés és meleg víz ellátás: Panasonic (5 kW) hőszivattyús rendszer látja el, minden helyiségben padlófűtéssel, 200 literes puffer tartállyal.

Parkolás: murvázott udvari beálló áll rendelkezésre.

Megközelíthetőség és infrastruktúra jó! Buszmegálló, óvoda, iskola, bevásárlási lehetőség, strand hamar elérhető!

További hasonló ingatlanok találhatók még a kínálatunkban!

Szüksége van hitelre? SEGÍTÜNK!

Bankfüggetlen hitel tanácsadónk díjmentesen áll az Ön rendelkezésére! Keressen bizalommal!

A hirdetésben szereplő adatok, információk, képek, alaprajzok stb... tájékoztató jellegűek! Irodánk az esetleges elírásokért felelősséget nem tud vállalni!

Tájékoztatjuk a Tisztelt Érdeklődőket, hogy az ingatlan hirdetésében szereplő telefonszám felhívásával Önök hozzájárulnak személyes adataik (név, telefonszám), a hirdetést feladó -Otthonplusz.hu Kft. - által a bizalmas kezeléshez és nyilvántartáshoz.

Töltsd fel ingatlanhirdetésed ingyenesen!

Ingyenes hirdetésfeladás
Havi több mint egymillió ingatlankereső
Egyszerű és gyors hirdetésfeladás
Hirdetésfeladás
eladó
Bakó NobertIngatlanreferens
+36 20...

Töltsd fel ingatlanhirdetésed ingyenesen!

Ingyenes hirdetésfeladás
Havi több mint egymillió ingatlankereső
Egyszerű és gyors hirdetésfeladás
Hirdetésfeladás
Bank360Bank360
Személyi kölcsön
Lakáshitel
Bankszámla
Utasbiztosítás
1 000 000 Ft50 000 000 Ft
6 hónap50 hónap