Ingatlan360 logo
  • Magánszemélyeknek
  • Közvetítőknek
  • Hirdetésfeladás
  • Árak és hirdetési lehetőségek
  • Mennyit ér az ingatlanom?
  • Ingatlan statisztikák

Eladó ikerház ÚJ ÉPÍTÉSŰ, Százhalombatta

ÚJ ÉPÍTÉSŰ, Százhalombatta képe
6
ÚJ ÉPÍTÉSŰ, Százhalombatta 2. képe
ÚJ ÉPÍTÉSŰ, Százhalombatta 3. képe6
80 M Ft
879 121 Ft / m²
91m2
Alapterület
400m2
Telekterület
3
Szoba
Fix 3%-os Otthon Start lakáshitel
Szobák száma
3
Építés éve
nincs megadva
Ingatlan állapota
Új
Emelet
nincs megadva
Parkolás
Udvarban
Légkondicionáló
Nincs
Közös költség
nincs megadva
Fűtés
nincs megadva
Fal építési anyaga
Tégla
Lift
Nincs
Az ingatlanról:
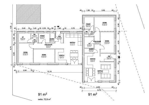
Százhalombatta családi házas övezetében, az Óvárosban kínálunk megvételre két lakóegységből álló ikerházat.

A kivitelező cég számos százhalombattai referenciamunkával rendelkezik, aki több éve megbízhatóan, pontos határidőkkel végzi a kivitelezést ügyfelei legnagyobb megelégedésére.

Az építkezés folyamatosan halad, várható befejezés 2026 ősz.

Az ikerházi lakások társasházi alapító okirattal, külön helyrajzi számmal (albetétesítve) és külön mérőórákkal, saját kertrésszel, megosztással kerülnek átadásra a leendő tulajdonosok részére.

1.lakás: bruttó 91 nm, nettó 72,8 nm + 6 nm terasz
telekterület: 400 nm
szobaszám: 1+2
KÜLÖNÁLLÓ, SAJÁT GARÁZS a telekrészen belül!

2.lakás: bruttó 91 nm, nettó 72,8 nm + 6 nm terasz
telekterület: 400 nm
szobaszám: 1+2

Az ár a befejezett, KULCSRAKÉSZ állapotra vonatkozik!

Főbb műszaki paraméterek:
- alap: vasalt, szigetelt beton sávalap
- tartófalazat: 30-as Porotherm XTherm okostégla
- válaszfalak: 10-es Ytong
- szigetelés: homlokzat 15 cm dryvit, lábazat 10-cm xps
- födém: a szerkezetű, 25 cm fújt cellulóz szigeteléssel
- fűtés: Panasonic hőszivattyú (5kW), padlófűtés hőleadással
- melegvíz: hőszivattyúra kötött 200 literes HMV tartály
- nyílászárók: fehér, három rétegű hő-és hangszigetelt, beépített redőnytokkal

A belső ajtók 50.000 Ft/db, a hideg-és meleg burkolatok 4.000 Ft/nm áron a vevő által szabadon választhatóak.

Az érdeklődők részére teljes műszaki és fotódokumentáció rendelkezésre áll, valamint már elkészült referencia házak is megtekinthetőek.

OtthonSart, CSOK Plusz és piaci hitel igénybe vehető, melyben ingatlanirodánk BANKFÜGGETLEN hitelcentruma, DÍJMENTESEN áll érdeklődőink rendelkezésére.

- Egyedi, bankfiókban nem elérhető kamat- és díjkedvezmények
- Hitelképesség vizsgálat
- Idő, energia és pénz megtakarítás
- Teljes hivatali ügyintézés

Ne maradjon le róla!

További információkért és megtekintéssel kapcsolatban várom jelentkezését a hét minden napján.

A hirdetésben szereplő adatok tájékoztató jellegűek, nem minősülnek ajánlattételnek. ...TOVÁBBI, TÖBBEZRES INGATLAN KÍNÁLAT: www.gdn-ingatlan.hu - GDN azonosító: 389873

Töltsd fel ingatlanhirdetésed ingyenesen!

Ingyenes hirdetésfeladás
Havi több mint egymillió ingatlankereső
Egyszerű és gyors hirdetésfeladás
Hirdetésfeladás
eladó
Fodor ÁgnesIngatlanreferens
+36 20...
iroda logo
GDN IngatlanhálózatIroda további hirdetései

Töltsd fel ingatlanhirdetésed ingyenesen!

Ingyenes hirdetésfeladás
Havi több mint egymillió ingatlankereső
Egyszerű és gyors hirdetésfeladás
Hirdetésfeladás
Bank360Bank360
Személyi kölcsön
Lakáshitel
Bankszámla
Utasbiztosítás
1 000 000 Ft50 000 000 Ft
6 hónap50 hónap