Ingatlan360 logo
  • Magánszemélyeknek
  • Közvetítőknek
  • Hirdetésfeladás
  • Árak és hirdetési lehetőségek
  • Mennyit ér az ingatlanom?
  • Ingatlan statisztikák

Eladó ipari Szombathely

Szombathely képe
10
Szombathely 2. képe
Szombathely 3. képe10
11,2 M Ft
170 000 Ft / m²
66m2
Alapterület
Szobák száma
nincs megadva
Építés éve
2019
Ingatlan állapota
nincs megadva
Emelet
Földszint
Parkolás
nincs megadva
Légkondicionáló
Nincs
Közös költség
nincs megadva
Fűtés
nincs megadva
Fal építési anyaga
nincs megadva
Lift
Nincs
Az ingatlanról:
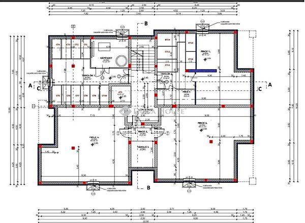
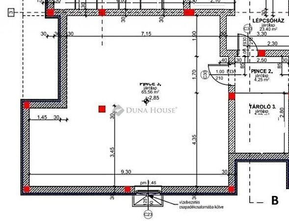
66 nm es RAKTÁR TÁROLÓ ELADÓ ÚJÉPÍTÉSŰ LAKÓPARK PINCE 1 SZINTJÉN Szombathely belvárosától pár percre Kámon határában az Írottkő u ban levő Gyöngyös patak Lakóparkban kínálom eladásra ezt a pinceszinten elhelyezkedő 66 nm es tulajdoni lap szerint pince megnevezésű ingatlant A Társasház 2019 ben épült újszerű állapotú mint ahogy a 1 szinten levő ablakkal rendelkező pincehelyiség is Korábban projektirodaként és bemutatóteremként használták a projekthez kapcsolódó építési anyagokat hideg melegburkolatok beltéri ajtók stb tároltak itt Vállalkozásra is ideális lehet Funkcióját tekintve lehet akár műhely iroda tároló raktár is A lakóknak a pinceszinten több pincerekeszt leválasztottak lehetőség lenne itt is kisebb tárolókat kialakítani és bérbe adni A Társasház fűtése talajszondás hőszivattyús rendszerrel működtetik itt az alsó szinten nincs fűtés de a hőmérséklet optimális fűtött helyiség hőérzet tapasztalható Összesen 4 db pince besorolású helyiség helyezkedik el egymás mellett Egyben is megvásárolható: 31 960 000 Ft Áfa vételáron a jelen hirdetésben is szereplő az alaprajzon P3 as számmal jelölt 66 m2 alapterületű nettó 11 220 000 Ft 1db 68 m2 alapterületű nettó 11 560 000 Ft 1db 47 m2 alapterületű nettó 7 990 000 Ft 1 db 4 m2 alapterületű de 7 nm a valóságban nettó 1 190 000 Ft A vételár nettóban értendő a 27 áfát nem tartalmazza És ne feledje vevőinknek minden szolgáltatásunk INGYENES További információkért és megtekintésért kérem hívjon vagy küldjön e mailt Érd : Volner Szilveszter Tel : 36 30 633 5085 Referencia szám: TR068458 IN

Töltsd fel ingatlanhirdetésed ingyenesen!

Ingyenes hirdetésfeladás
Havi több mint egymillió ingatlankereső
Egyszerű és gyors hirdetésfeladás
Hirdetésfeladás
eladó
Volner SzilveszterIngatlanreferens
+36 30...
iroda logo
Duna House SzombathelyIroda további hirdetései

Töltsd fel ingatlanhirdetésed ingyenesen!

Ingyenes hirdetésfeladás
Havi több mint egymillió ingatlankereső
Egyszerű és gyors hirdetésfeladás
Hirdetésfeladás
Bank360Bank360
Személyi kölcsön
Lakáshitel
Bankszámla
Utasbiztosítás
1 000 000 Ft50 000 000 Ft
6 hónap50 hónap