Ingatlan360 logo
  • Magánszemélyeknek
  • Közvetítőknek
  • Hirdetésfeladás
  • Árak és hirdetési lehetőségek
  • Mennyit ér az ingatlanom?
  • Ingatlan statisztikák

Eladó téglalakás Győr

Győr képe
14
Győr 2. képe
Győr 3. képe14
63,1 M Ft
1 213 462 Ft / m²
52m2
Alapterület
2
Szoba
Fix 3%-os Otthon Start lakáshitel
Szobák száma
2
Építés éve
nincs megadva
Ingatlan állapota
Új
Emelet
1.
Parkolás
nincs megadva
Légkondicionáló
Nincs
Közös költség
nincs megadva
Fűtés
Távfűtés
Fal építési anyaga
nincs megadva
Lift
Nincs
Az ingatlanról:
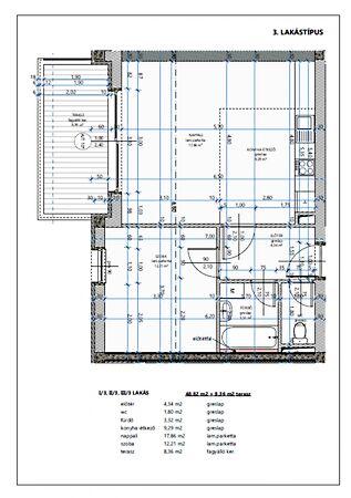
Új építésű, nappali + 1 hálós lakás, erkéllyel Győr-Nádorvárosban!

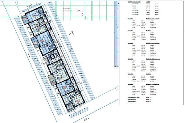
Győr-Nádorvárosban 2025. novemberi, emeltszintű fűtéskész átadással készülő, új építésű, 25 lakásos, liftes társasház 1. emeletén található, 48,62 nm + 8,36 nm erkély alapterületű, nappali + 1 szobás téglalakás eladó.

I/3. lakás elosztása: előtér, amerikai konyhás nappali, hálószoba, fürdőszoba, wc, erkély

Az ingatlan fűtéskész állapotban kerül átadásra, ára 63.100.000 Ft.

A külső teherhordó falazat 30-as POROTHERM falazóelem, 10 cm vastag homlokzati hőszigeteléssel,a lakáselválasztó falazat 25 cm-es hanggátló tégla. Nyílászárók: műanyag,6 légkamrás, 3 rétegű hő- és hangszigetelő üvegezéssel, rejtett redőnytokkal és alumínium redőnnyel. Bejárati ajtók műanyag ajtók, biztonsági zárral.
Az épület fűtése távhő, a hőleadók lapradiátorok, lakásonként hőmennyiségmérővel. 1x32 A áramellátás biztosított.
A társasház tervezett átadása 2025. november.

Teremgarázsban gépkocsibeálló korlátozott számban vásárolható. Ára: 8 500 000 Ft.

Az ingatlan megvásárláshoz készpénzes ügyfeleket várunk, hitel felvétele sajnos nem lehetséges. (hiv. szám: 5877)

Töltsd fel ingatlanhirdetésed ingyenesen!

Ingyenes hirdetésfeladás
Havi több mint egymillió ingatlankereső
Egyszerű és gyors hirdetésfeladás
Hirdetésfeladás
eladó
Stipsits JuditIngatlanreferens
+36 70...
iroda logo
PANORÁMA INGATLANIroda további hirdetései

Töltsd fel ingatlanhirdetésed ingyenesen!

Ingyenes hirdetésfeladás
Havi több mint egymillió ingatlankereső
Egyszerű és gyors hirdetésfeladás
Hirdetésfeladás
Bank360Bank360
Személyi kölcsön
Lakáshitel
Bankszámla
Utasbiztosítás
1 000 000 Ft50 000 000 Ft
6 hónap50 hónap