Ingatlan360 logo
  • Magánszemélyeknek
  • Közvetítőknek
  • Hirdetésfeladás
  • Árak és hirdetési lehetőségek
  • Mennyit ér az ingatlanom?
  • Ingatlan statisztikák

Eladó téglalakás Debrecen

Debrecen képe
12
Debrecen 2. képe
Debrecen 3. képe12
86 M Ft
1 048 780 Ft / m²
82m2
Alapterület
3
Szoba
Fix 3%-os Otthon Start lakáshitel
Szobák száma
3
Építés éve
1978
Ingatlan állapota
nincs megadva
Emelet
nincs megadva
Parkolás
nincs megadva
Légkondicionáló
Nincs
Közös költség
nincs megadva
Fűtés
Cirkófűtés
Fal építési anyaga
nincs megadva
Lift
Nincs
Az ingatlanról:
Debrecen egyik legkedveltebb városrészében, a klasszikus Nagyerdőn, a Géresi utcában kínálunk megvételre egy 82 m²-es, téglaépítésű, egyedi gáz-cirkó fűtéses társasházi lakást.
Az ingatlan egy kilenc lakásos, zárt udvaros társasház felső szintjén helyezkedik el, így felső szomszéd nélkül, nyugodt, zavartalan lakókörnyezetet biztosítva.

Az ingatlan főbb jellemzői:
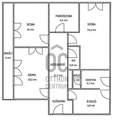
-82 m² alapterület
-3 külön nyíló szoba, konyha + étkező
-Tágas, napfényes belső terek
-Műanyag nyílászárók redőnnyel és szúnyoghálóval
-Egyedi gáz-cirkó fűtés kondenzációs kazánnal
-Klímaberendezés
-Fürdőszoba káddal és zuhanyzóval
-WC külön helyiségben
-Spájz
-Terasz
-Tégla építésű társasház
-Kis létszámú lakóközösség
-Alacsony fenntartási költségek

A lakás elrendezése rugalmas: a három külön nyíló szoba közül kettő egymásból is megközelíthető, így az alaprajz családoknak, pároknak vagy befektetési célra is kiválóan alakítható.
Az egyik szobából közvetlen kijárat a tágas erkélyre.
A társasházhoz gondozott kert tartozik, a környék csendes és rendezett.

Elhelyezkedés:
-Az ingatlan kiváló lokációval rendelkezik:
-Egyetemek, Klinikák, villamosmegálló néhány perc sétára
-Zöldövezeti parkok a közelben
-Iskola, óvoda, boltok, gyógyszertár, cukrászda gyalogosan elérhetőek

A lakás saját részre és befektetésnek egyaránt ideális választás.
Az alaprajz tájékoztató jellegű.

Amennyiben az ingatlan felkeltette érdeklődését, várom telefonos megkeresését további információért vagy megtekintés egyeztetéséhez.

Ez az ingatlan a „Hűségcsomag” megbízási portfóliónk része. Bővebb információkért keresse az Otthon Centrum weboldalán a Felezőcsomag menüpontot, vagy hívjon minket bizalommal!

Ez az ingatlan a "Hűség csomag" megbízási portfólióhoz tartozik. Részletek az Otthon Centrum weboldalán.
Villanyáram: van.
Vízellátás: van.
Csatornázás: van.
Gázellátás: van.

Töltsd fel ingatlanhirdetésed ingyenesen!

Ingyenes hirdetésfeladás
Havi több mint egymillió ingatlankereső
Egyszerű és gyors hirdetésfeladás
Hirdetésfeladás
eladó
Varga GyörgyIngatlanreferens
+36 70...

Töltsd fel ingatlanhirdetésed ingyenesen!

Ingyenes hirdetésfeladás
Havi több mint egymillió ingatlankereső
Egyszerű és gyors hirdetésfeladás
Hirdetésfeladás
Bank360Bank360
Személyi kölcsön
Lakáshitel
Bankszámla
Utasbiztosítás
1 000 000 Ft50 000 000 Ft
6 hónap50 hónap