Ingatlan360 logo
  • Magánszemélyeknek
  • Közvetítőknek
  • Hirdetésfeladás
  • Árak és hirdetési lehetőségek
  • Mennyit ér az ingatlanom?
  • Ingatlan statisztikák

Eladó panel lakás Kerék, Budapest, III. kerület

Kerék, Budapest, III. kerület képe
12
Kerék, Budapest, III. kerület 2. képe
Kerék, Budapest, III. kerület 3. képe12
79,9 M Ft
1 175 000 Ft / m²
68m2
Alapterület
3
Szoba
Fix 3%-os Otthon Start lakáshitel
Szobák száma
3
Építés éve
1974
Ingatlan állapota
Jó állapotú
Emelet
9.
Parkolás
Parkoló
Légkondicionáló
Nincs
Közös költség
nincs megadva
Fűtés
Távfűtés
Fal építési anyaga
Panel
Lift
Nincs
Az ingatlanról:
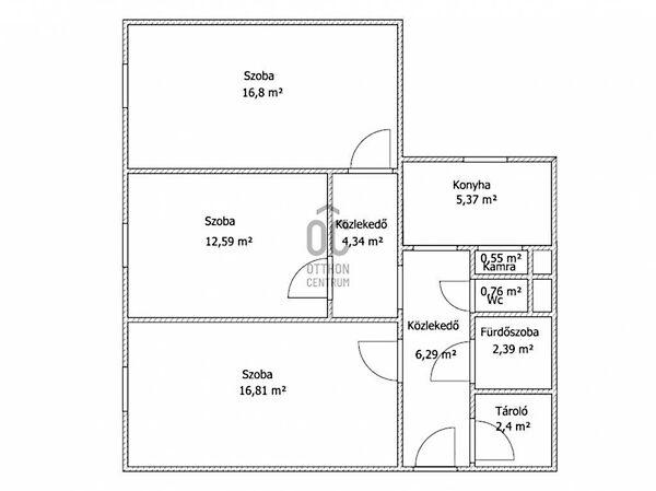
Eladó egy jó állapotú 3 szobás panel lakás Óbuda központi részén A fürdő wc tavaly lett felújítva az elektromos hálózat a nyílászárók a parketta és a konyha pedig korábban Az ingatlan a 3 os hitel feltételeinek megfelel 3 külön nyíló egész szoba a lakás keleti fekvésű Klíma van a nappaliban 9 emelet liftes nem zárószinti Biztonsági bejárati ajtó Gardrób tároló ahova a mosógép elhelyezhető Kamra spájz Akár 30 napon belül költözhető kifizetéstől függően Közös költség 17 000 Ft hó a távhő szintén 17 000 Ft hó Amennyiben felkeltettem az érdeklődését kérem hívjon a hét bármelyik napján

Töltsd fel ingatlanhirdetésed ingyenesen!

Ingyenes hirdetésfeladás
Havi több mint egymillió ingatlankereső
Egyszerű és gyors hirdetésfeladás
Hirdetésfeladás
eladó
Csongár IstvánIngatlanreferens
+36 70...
iroda logo
XI. kerület - Bicskei utcaIroda további hirdetései

Töltsd fel ingatlanhirdetésed ingyenesen!

Ingyenes hirdetésfeladás
Havi több mint egymillió ingatlankereső
Egyszerű és gyors hirdetésfeladás
Hirdetésfeladás
Bank360Bank360
Személyi kölcsön
Lakáshitel
Bankszámla
Utasbiztosítás
1 000 000 Ft50 000 000 Ft
6 hónap50 hónap