Ingatlan360 logo
  • Magánszemélyeknek
  • Közvetítőknek
  • Hirdetésfeladás
  • Árak és hirdetési lehetőségek
  • Mennyit ér az ingatlanom?
  • Ingatlan statisztikák

Eladó téglalakás Nyíregyháza

Nyíregyháza képe
6
Nyíregyháza 2. képe
Nyíregyháza 3. képe6
62 M Ft
999 919 Ft / m²
62m2
Alapterület
1
Szoba
Fix 3%-os Otthon Start lakáshitel
Szobák száma
1
Építés éve
nincs megadva
Ingatlan állapota
Új
Emelet
2.
Parkolás
nincs megadva
Légkondicionáló
Nincs
Közös költség
nincs megadva
Fűtés
nincs megadva
Fal építési anyaga
nincs megadva
Lift
Nincs
Az ingatlanról:
Eladó prémium lakás Nyíregyháza belvárosában – Kossuth utca 34. / Sólyom köz sarka

 

Kivételes adottságokkal rendelkező, prémium kategóriás lakás eladó Nyíregyháza szívében, a Kossuth utca 34. szám alatt!

A modern, liftes társasházban 4 lakószinten összesen 26 lakás épül 35–73 m² között, A+ energetikai besorolással és 2 szintes teremgarázzsal.

 

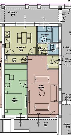
 Lakás adatai (2. emelet, 3. lakás):

 

Lakótér: 58,78 m²

Terasz: 6,43 m²

Elrendezés: nappali + étkező–konyha,2 hálószoba, fürdő, külön WC, tároló, 2 előtér

Belső kialakítás teljesen személyre szabható (burkolatok, szaniterek, falszínek, világítás)

 

 Extra lehetőség:

Aki most teremgarázst vásárol a lakáshoz,
ajándékba kap egy modern konyhabútort,
amely tökéletesen illeszkedik az otthon stílusához és hangulatához.

 

Fő jellemzők:

 

Prémium kivitelezés, modern dizájn

Hőszivattyús fűtés–hűtés, A+ energiahatékonyság

Privát, zárt udvari kertkapcsolat

Parkoló és tárolóhely külön vásárolható

Várható átadás: 2026 év vége

 

 A jó lokáció értéknövelő beruházás — már csak néhány lakás elérhető!

Ne maradjon le erről a páratlan lehetőségről!

További információért és megtekintésért keresse értékesítőnket!

Egyéb jellemzők:

Villanyáram: Bevezetve (230 Volt).
Vízellátás: Van.
Csatornázás: Közműhálózatba bekötve.

Töltsd fel ingatlanhirdetésed ingyenesen!

Ingyenes hirdetésfeladás
Havi több mint egymillió ingatlankereső
Egyszerű és gyors hirdetésfeladás
Hirdetésfeladás
eladó
Pancsusák SándorIngatlanreferens
+36 20...

Töltsd fel ingatlanhirdetésed ingyenesen!

Ingyenes hirdetésfeladás
Havi több mint egymillió ingatlankereső
Egyszerű és gyors hirdetésfeladás
Hirdetésfeladás
Bank360Bank360
Személyi kölcsön
Lakáshitel
Bankszámla
Utasbiztosítás
1 000 000 Ft50 000 000 Ft
6 hónap50 hónap