Ingatlan360 logo
  • Magánszemélyeknek
  • Közvetítőknek
  • Hirdetésfeladás
  • Árak és hirdetési lehetőségek
  • Mennyit ér az ingatlanom?
  • Ingatlan statisztikák

Eladó téglalakás Nyíregyháza

Nyíregyháza képe
7
Nyíregyháza 2. képe
Nyíregyháza 3. képe7
69,9 M Ft
1 109 524 Ft / m²
63m2
Alapterület
2
Szoba
Fix 3%-os Otthon Start lakáshitel
Szobák száma
2
Építés éve
2025
Ingatlan állapota
Új
Emelet
1.
Parkolás
nincs megadva
Légkondicionáló
Nincs
Közös költség
nincs megadva
Fűtés
Gáz (egyedi)
Fal építési anyaga
Egyéb
Lift
Nincs
Az ingatlanról:
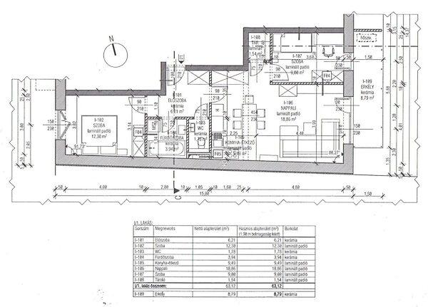
Nyíregyháza belvárosának közelében eladó egy új építésű társasházban található, 1. emeleti 63,12 nm-es  2 szoba+ amerikai konyhás nappalis lakás, 8,79-nm-es erkéllyel.
A lakás 7 lakásos szigetelt társasházban található, műanyag nyílászárókkal felszerelt, fűtését egyedi gázfűtés biztosítja padlófűtéssel. A burkolatok és a nyílászárók készültségi foktól függően választhatók. Igény szerint az ingatlanhoz garázs vásárlási lehetőség is biztosított.
További lakások:

Fóldszinten  44,92 nm-es  1 szoba+ amerikai konyhás nappalis.
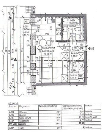
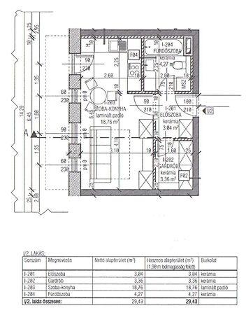
1. emeleti    29,43 nm-es  1 szoba+ amerikai konyhás lakás, gardróbszobával.
1. emeleti    62,91 nm-es  2 szoba+ amerikai konyhás nappalis, 4,05-nm-es erkéllyel. 
2. emeleti    60,15 nm-es  2 szoba+ amerikai konyhás nappalis, 8,79-nm-es erkéllyel.
2. emeleti    29,43 nm-es  1 szoba+ amerikai konyhás, gardróbszobás, 6,55-nm es erkéllyel.
2. emeleti    62,91 nm-es  2 szoba+ amerikai konyhás nappalis, 6,36-nm-es erkéllyel, tárolóval. 

Bármilyen kérdése van az ingatlannal kapcsolatban, annak hitelfinanszírozásáról, vagy ha személyesen megtekintené, keressen bizalommal!
Megtekintheti további hirdetéseimet.https://favoritingatlan.hu/ertekesito/144/hegedus-istvanAz ingatlan azonosítója: 68157Érdeklődni: +36202441618

Töltsd fel ingatlanhirdetésed ingyenesen!

Ingyenes hirdetésfeladás
Havi több mint egymillió ingatlankereső
Egyszerű és gyors hirdetésfeladás
Hirdetésfeladás
eladó
Kertész MónikaIngatlanreferens
+36 20...
iroda logo
Favorit ingatlanközvetítő és hitelügyintéző irodaIroda további hirdetései

Töltsd fel ingatlanhirdetésed ingyenesen!

Ingyenes hirdetésfeladás
Havi több mint egymillió ingatlankereső
Egyszerű és gyors hirdetésfeladás
Hirdetésfeladás
Bank360Bank360
Személyi kölcsön
Lakáshitel
Bankszámla
Utasbiztosítás
1 000 000 Ft50 000 000 Ft
6 hónap50 hónap