Ingatlan360 logo
  • Magánszemélyeknek
  • Közvetítőknek
  • Hirdetésfeladás
  • Árak és hirdetési lehetőségek
  • Mennyit ér az ingatlanom?
  • Ingatlan statisztikák

Eladó téglalakás Szombathely

Szombathely képe
4
Szombathely 2. képe
Szombathely 3. képe4
48,7 M Ft
974 000 Ft / m²
50m2
Alapterület
1
Szoba
Fix 3%-os Otthon Start lakáshitel
Szobák száma
1
Építés éve
2026
Ingatlan állapota
Új
Emelet
4.
Parkolás
nincs megadva
Légkondicionáló
Nincs
Közös költség
nincs megadva
Fűtés
Központi (egyedi mérővel)
Fal építési anyaga
Tégla
Lift
Nincs
Az ingatlanról:
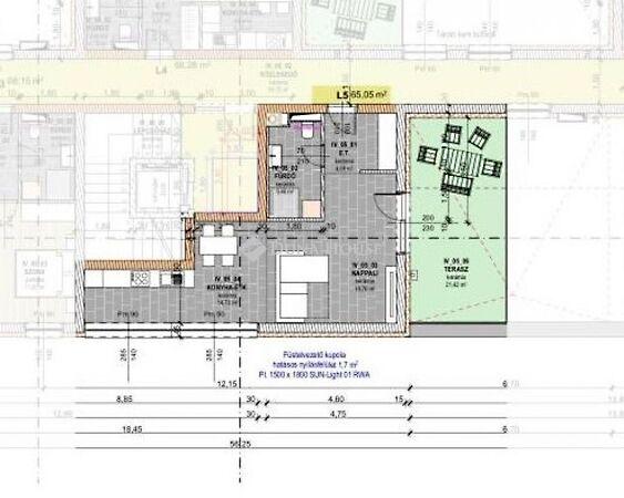
A Jázmin Lakópark Szombathely belvárosától pár percnyi sétára a kedvelt Joskar Ola városrészen újépítésű ingatlanok környezetében valósul meg 3 X 58 lakás épül jelenleg az I ütem értékesítése zajlik A hirdetésben szereplő lakás HARMADIK EMELETI nappali 2 szobás alapterülete 52 18 nm 5 36 nm terasz tartozik hozzá A szabadonálló beépítésű elegáns megjelenésű négyemeletes lakóingatlanokból 3 db álló projekt a belvárostól karnyújtásnyira lévő területen épül A kiváló tájolású lakásokat nagyon jó elosztás és élhető terek jellemzik erkélykapcsolattal is növelve a komfortérzetet és a kényelmet A tervezés során minden korosztály igényét figyelembe vették így az egyszobástól a nappali kétszobás kialakításig változatos elrendezéssel 37 m2 és 66 m2 közötti alapterülettel választhatóak A lakások értékállóságát az átgondolt tervezés és minőségi anyagok felhasználása biztosítja Az innovatív építészeti megoldásokat tartalmazó épületek kedvező energetikai besorolással készülnek Infrasrtuktúrát tekintve példa értékű a lakópark elhelyezkedése A közelben gyalogosan is könnyen elérhetőek élelmiszerboltok posta iskola óvoda játszóterek és egyéb létesítmények de akár a belváros is kis sétával percek alatt megközelíthető Fűtés: Központi távhős fűtés tervezett lakásokban padlófűtéssel egyedi hőmennyiség szabályozással és mérővel A használati melegvizet is a távhő központból biztosítjuk a fogyasztás lakásonként egyedi mérővel történik Lakásonként 1 db 2 5 kw os hőszivattyús Green vagy azzal egyenértékű típusú klíma kerül felszerelésre Amit a vételár tartalmaz:Hidegburkolatok 7 000 Ft m2 áronMelegburkolatok 6 000 Ft m2 áronBeltéri ajtó színe választhatóSzanitercsomag a Mozaik fürdőszoba szaküzletben összeállított csomag alapján Fehérre festett belső falakteraszon egységes lapburkolat és korlát nem választható 1 db klímát tartalmaz a vételárKülön vásárolható parkolóhely garázs és tároló A 15 86 nm es garázsok elektromos kapuval Hörmann és saját mérőórával felszereltek Garázs ára: 10 900 000 FtAutóbeálló ára: 1 800 000 FtTároló 3 81 4 48 nm 2 200 000 FtTároló 8 17 nm : 4 500 000 FtKözös tároló nincs Használatba vételi engedélyeztetés az I tömb esetében várhatóan 2026 év vége Befektetésnek is tökéletes választás Akár otthont tervez akár befektetést biztos döntést hozhat A lakások iránt intenzív az érdeklődés ha érdekli Önt hívja irodánkat mielőbb További információkért és megtekintésért kérem hívjon vagy írjon e mailt Érd : Volner Szilveszter Tel : 36 30 633 5085 Referencia szám: PR075959 LK 25309 IN

Töltsd fel ingatlanhirdetésed ingyenesen!

Ingyenes hirdetésfeladás
Havi több mint egymillió ingatlankereső
Egyszerű és gyors hirdetésfeladás
Hirdetésfeladás
eladó
Volner SzilveszterIngatlanreferens
+36 30...
iroda logo
Duna House SzombathelyIroda további hirdetései

Töltsd fel ingatlanhirdetésed ingyenesen!

Ingyenes hirdetésfeladás
Havi több mint egymillió ingatlankereső
Egyszerű és gyors hirdetésfeladás
Hirdetésfeladás
Bank360Bank360
Személyi kölcsön
Lakáshitel
Bankszámla
Utasbiztosítás
1 000 000 Ft50 000 000 Ft
6 hónap50 hónap