Az ingatlanról:
Az ingatlan közvetlenül a tulajdonostól eladó, elérhetősége: Dr. Kondor János +36302981989
Szombathely legfrekventáltabb részén, a belváros szívében teljes körűen felújított, 88 m²-es belvárosi lakás eladó.
• Alapterület: 88 m²
• Állapot: teljes körűen felújított, azonnal költözhető
• Fűtés: Bosch gázkazán, alacsony rezsiköltség
• Emelet: félemelet
Miért különleges ez az ingatlan?
✔ Kivételes elhelyezkedés – Szombathely belvárosában, a Fő tértől mindössze 80 méterre, a Kossuth Lajos utcában
✔ Teljes körű felújítás – új gépészet, elektromos hálózat, nyílászárók, burkolatok és modern belső kialakítás
✔ Világos, tágas terek – nagy ablakok, magas belmagasság, barátságos atmoszféra
✔ Extrák a belvárosban – saját zárható parkolóhely az udvarban + 30 m² pincei tároló, ami a vételár részét képezi
✔ Értékálló befektetés – ideális saját használatra, hosszú távú kiadásra, vagy akár rövid távú bérbeadásra
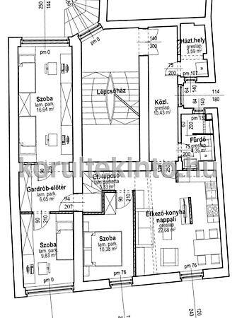
Helyiségek:
• Amerikai konyhás nappali, modern, gépesített konyhával
• 3 hálószoba (külön bejárattal)
• Zuhanyzós fürdőszoba
• Háztartási helyiség + 2 WC
• Tágas folyosó
• Nagy, beépített gardrób szekrény
Környék és elhelyezkedés:
A környéken minden elérhető néhány perc sétával:
• éttermek, kávézók, üzletek
• óvoda, iskola, orvosi rendelő
• közlekedési csomópontok és buszmegállók
• Fő tér, kulturális és szórakozási lehetőségek
Az ilyen adottságokkal rendelkező, teljes körűen felújított lakások a belvárosban nagyon ritkán kerülnek piacra.
Egyéb jellemzők:
Villanyáram: Bevezetve (230 Volt).
Vízellátás: Van, saját vízórával.
Csatornázás: Közműhálózatba bekötve.
Gázellátás: Vezetékes gáz.
Kilátás: Utcára.