Ingatlan360 logo
  • Magánszemélyeknek
  • Közvetítőknek
  • Hirdetésfeladás
  • Árak és hirdetési lehetőségek
  • Mennyit ér az ingatlanom?
  • Ingatlan statisztikák

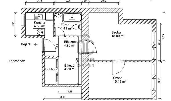
Eladó téglalakás Budapest, XI. kerület

Budapest, XI. kerület képe
15
Budapest, XI. kerület 2. képe
Budapest, XI. kerület 3. képe15
95 M Ft
1 759 259 Ft / m²
54m2
Alapterület
2
Szoba
Szobák száma
2
Építés éve
1930
Ingatlan állapota
Jó állapotú
Emelet
5.
Parkolás
Parkoló
Légkondicionáló
Nincs
Közös költség
nincs megadva
Fűtés
Távfűtés
Fal építési anyaga
Tégla
Lift
Nincs
Az ingatlanról:
Fedezze fel új otthonát Budapest szívében – 2 szobás lakás Kelenföldön várja Önt Fedezze fel Budapest 11 kerületének kiváló lokációval rendelkező ingatlanját amely ideális választás lehet akár saját otthonának akár befektetési céllal Ez a 54 négyzetméteres 2 szobás lakás Kelenföld szívében helyezkedik el ahol a városi élet minden előnyét élvezheti A lakás jó állapotban várja új tulajdonosát így azonnal birtokba vehető A távfűtés biztosítja a kellemes hőmérsékletet a hideg hónapokban és az egyedi mérés lehetősége lehetővé teszi a költségek hatékonyabb nyomon követését A környék ellátottsága kiváló hiszen a közeli üzletek éttermek és szolgáltatások mindössze pár perc sétára találhatók A mindennapi élethez szükséges kényelmi szolgáltatások könnyen elérhetők legyen szó bevásárlásról vagy szórakozásról A központi elhelyezkedés lehetővé teszi hogy a város bármely pontja könnyen és gyorsan megközelíthető legyen A közlekedési lehetőségek kiemelkedőek: a közeli busz és villamosmegállók révén a város többi része is gyorsan elérhető így a napi ingázás nem jelent majd problémát A Kelenföldi városrész biztonságos és csendes ami ideális környezetet biztosít a nyugodt mindennapokhoz A zöld területek közelsége lehetőséget ad a szabadidő kellemes eltöltésére legyen szó sétáról vagy sportolásról Az ingatlan tehermentes így a vásárlás folyamata gyorsan és zökkenőmentesen lebonyolítható Ez a világos lakás nem csupán egy ingatlan hanem egy lehetőség is hogy egy olyan környezetben éljen ahol a városi élet minden előnyét élvezheti miközben a nyugalom szigetévé is válhat Ha bármilyen kérdése van az ingatlannal kapcsolatban vagy szeretné megtekinteni a lakást ne habozzon keresni minket bizalommal Szakértőink készséggel állnak rendelkezésére hogy segítsenek Önnek a legjobb döntés meghozatalában Az ingatlanpiac dinamikus és ez a nagyszerű ajánlat nem sokáig lesz elérhető ezért érdemes mielőbb lépni

Töltsd fel ingatlanhirdetésed ingyenesen!

Ingyenes hirdetésfeladás
Havi több mint egymillió ingatlankereső
Egyszerű és gyors hirdetésfeladás
Hirdetésfeladás
eladó
Sulok BenceIngatlanreferens
+36 70...
iroda logo
XI. kerület - Bicskei utcaIroda további hirdetései

Töltsd fel ingatlanhirdetésed ingyenesen!

Ingyenes hirdetésfeladás
Havi több mint egymillió ingatlankereső
Egyszerű és gyors hirdetésfeladás
Hirdetésfeladás
Bank360Bank360
Személyi kölcsön
Lakáshitel
Bankszámla
Utasbiztosítás
1 000 000 Ft50 000 000 Ft
6 hónap50 hónap