Ingatlan360 logo
  • Magánszemélyeknek
  • Közvetítőknek
  • Hirdetésfeladás
  • Árak és hirdetési lehetőségek
  • Mennyit ér az ingatlanom?
  • Ingatlan statisztikák

Eladó téglalakás Moha, Budapest, XII. kerület

Moha, Budapest, XII. kerület képe
20
Moha, Budapest, XII. kerület 2. képe
Moha, Budapest, XII. kerület 3. képe20
294,1 M Ft
1 441 616 Ft / m²
204m2
Alapterület
1603m2
Telekterület
4
Szoba
Szobák száma
4
Építés éve
nincs megadva
Ingatlan állapota
Új
Emelet
Földszint
Parkolás
1 garázs
Légkondicionáló
Nincs
Közös költség
nincs megadva
Fűtés
nincs megadva
Fal építési anyaga
Tégla
Lift
Nincs
Az ingatlanról:
ÁLOM LAKÓKÖRNYEZET, PANORÁMA ÉS LUXUS A VÁROS FELETT!

A lenyűgöző panorámával rendelkező luxus élettér a Budai oldal kiemelt részén a Farkasvölgy-Csillebérc városrészek ölelésében, közvetlenül tájvédelmi terület közelében, mégis ritka csendes hegyvidéki környezetben helyezkedik el!

A hirdetésben szereplő ár az alábbi egységeket foglalja magában:
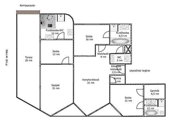
- lakás nettó alapterület: 153 m2,
- kertkapcsolatos nagyméretű terasz: 35 m2,
- kert használat, társasházi alapító szerinti megosztással,
- garázs: 16nm,
- közös használatú társasházi egységek (pl. lépcsőház, felszíni beálló)
- wellness részleg (úszómedence, Finn szauna, masszázs kád) használat.

A szűk lokáció pont attól egyedi, hogy 10 PERCEN BELÜL EGYARÁNT ELÉRHETŐ A XII. ÉS A XI. KERÜLET FREKVENTÁLT RÉSZEI, vagy akár Budaörs, valamint az M7-es, illetve M1-es autópálya kivezető szakasza (elkerülve a városi forgalmat)!

Az épülettel és a lakással kapcsolatos fotók, alaprajzok, kivitelezési tervdokumentációk igény szerint rendelkezésre állnak!

Rövid szerkezeti, műszaki tartalom:
- tetőfedés: antracit színű betoncserép + PREFA rendszerű alumínium lemez bádogozás,
- födém: vasbeton monolit födémszerkezet, előre gyártott és monolit kiváltók,
- vázszerkezet: 30 cm égetett vázkerámia, (Porotherm klíma),
- szigetelés: 15 cm vastag dryvit,
- belső válaszfal: 10 cm vastag válaszfaltégla, lakásokat elválasztó fal: 30 cm vastag hang-gátló téglával,
- 3 rétegű üveg, 5 légkamrás nyílászárók,
- hőszivattyús rendszer, padló és mennyezetfűtés.

FIGYELEM, az épületben további 2 lakás lett kialakítva, melyek külön emeleten helyezkednek el.
Fontos megemlíteni, hogy a kertkapcsolatos ingatlan hálószobai gardrób válaszfalának átalakításával akár közvetlen, privát kapcsolatot lehet biztosítani a wellness részhez!

Extrák:
- belső medence és kiépített wellness részleg,
- minőségi burkolatok, szaniterek és egyedi, átgondolt tervezés,
- távirányítós, motoros úszó kapu,
- önállóan használt garázs felhajtó,
- fűtött garázs (közvetlen lépcsőházi átjárással),
- Hitachi típusú hőszivattyús fűtésrendszer, padlófűtéssel! ...TOVÁBBI, TÖBBEZRES INGATLAN KÍNÁLAT: www.gdn-ingatlan.hu - GDN azonosító: 375716

Töltsd fel ingatlanhirdetésed ingyenesen!

Ingyenes hirdetésfeladás
Havi több mint egymillió ingatlankereső
Egyszerű és gyors hirdetésfeladás
Hirdetésfeladás
eladó
Kecskeméti ZsoltIngatlanreferens
+36 30...
iroda logo
GDN IngatlanhálózatIroda további hirdetései

Töltsd fel ingatlanhirdetésed ingyenesen!

Ingyenes hirdetésfeladás
Havi több mint egymillió ingatlankereső
Egyszerű és gyors hirdetésfeladás
Hirdetésfeladás
Bank360Bank360
Személyi kölcsön
Lakáshitel
Bankszámla
Utasbiztosítás
1 000 000 Ft50 000 000 Ft
6 hónap50 hónap