Ingatlan360 logo
  • Magánszemélyeknek
  • Közvetítőknek
  • Hirdetésfeladás
  • Árak és hirdetési lehetőségek
  • Mennyit ér az ingatlanom?
  • Ingatlan statisztikák

Eladó téglalakás Klasszikus hangulat, Budapest, XX. kerület

Klasszikus hangulat, Budapest, XX. kerület képe
16
Klasszikus hangulat, Budapest, XX. kerület 2. képe
Klasszikus hangulat, Budapest, XX. kerület 3. képe16
109,9 M Ft
773 944 Ft / m²
142m2
Alapterület
603m2
Telekterület
4
Szoba
Szobák száma
4
Építés éve
nincs megadva
Ingatlan állapota
Jó állapotú
Emelet
1.
Parkolás
Udvarban
Légkondicionáló
Nincs
Közös költség
nincs megadva
Fűtés
Cirkófűtés
Fal építési anyaga
Tégla
Lift
Nincs
Az ingatlanról:
Klasszikus stílusú, elegáns családi fészek Pesterzsébet szívében

Ha nagyobb térre vágyna, de maradna nyugodt, mégis jól megközelíthető környéken, ezt a lakást imádni fogja!
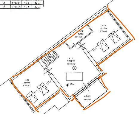
Eladó egy 142 nm-es, belső kétszintes, 3 szobás, 2 félszobás otthon Budapest XX. kerületében, családbarát környezetben.

Amit tudni érdemes:
✅ Jó állapot, egy új konyha beszerelése után azonnal költözhető
✅ Teljes tetőcsere már megtörtént
✅ Új villany- és gázvezetékek
✅ Szintenként külön biztosítéktábla
✅ Vadonatúj gázcirkó fűtés radiátorokkal
✅ 3 fürdőszoba – nincs több reggeli sorban állás!
✅ Udvari beálló + utcán ingyenes parkolás

Az alsó szinten tágas előtér gardróbbal, konyhakiállásokkal kamrával, valamint két fürdőszoba található.
A felső szint központja a világos nappali, ahonnan nyílik az erkély (4 nm) . Innen két külön nyíló szoba érhető el, valamint itt kapott helyet a harmadik fürdő is.
A lakás világos, száraz falakkal, jól szigetelő fa nyílászárókkal, fa lépcsőkorláttal. Riasztórendszer kiépítve (újraaktiválható).

Lenyűgöző hangulatú beltér,kis ráfordítással egy igazi nagyvonalú polgári otthon válhat belőle!

A környék:
Csendes, barátságos, minden a közelben – iskola, ovi, boltok, tömegközlekedés pár perc sétára.
Ideális nagycsaládosoknak vagy akár kétgenerációs együttélésre is, vagy befektetők számára egyránt.
Elsősorban készpénzes vevőket várunk! ...TOVÁBBI, TÖBBEZRES INGATLAN KÍNÁLAT: www.gdn-ingatlan.hu - GDN azonosító: 392798

Töltsd fel ingatlanhirdetésed ingyenesen!

Ingyenes hirdetésfeladás
Havi több mint egymillió ingatlankereső
Egyszerű és gyors hirdetésfeladás
Hirdetésfeladás
eladó
Justus LillaIngatlanreferens
+36 30...
iroda logo
GDN IngatlanhálózatIroda további hirdetései

Töltsd fel ingatlanhirdetésed ingyenesen!

Ingyenes hirdetésfeladás
Havi több mint egymillió ingatlankereső
Egyszerű és gyors hirdetésfeladás
Hirdetésfeladás
Bank360Bank360
Személyi kölcsön
Lakáshitel
Bankszámla
Utasbiztosítás
1 000 000 Ft50 000 000 Ft
6 hónap50 hónap