Ingatlan360 logo
  • Magánszemélyeknek
  • Közvetítőknek
  • Hirdetésfeladás
  • Árak és hirdetési lehetőségek
  • Mennyit ér az ingatlanom?
  • Ingatlan statisztikák

Eladó ikerház Érd

Érd képe
16
Érd 2. képe
Érd 3. képe16
169,9 M Ft
641 132 Ft / m²
265m2
Alapterület
1061m2
Telekterület
5
Szoba
Szobák száma
5
Építés éve
2001
Ingatlan állapota
Újszerű
Emelet
nincs megadva
Parkolás
2 vagy több garázs
Légkondicionáló
Van
Közös költség
nincs megadva
Fűtés
Gáz (cirkó)
Fal építési anyaga
Tégla
Lift
nincs megadva
Az ingatlanról:
Hivatkozzon erre, kód: 5013SZR

HATALMAS ÁRZUHANÁS! 199.9mFt helyett 169.9mFt!

- ÚJSZERŰ ÁLLAPOT

- AZONNAL KÖLTÖZHETŐ

- SAJÁT UTCAFRONTI BEJÁRAT, TÁGAS TEREK

- ÖNÁLLÓ HRSZ

- SZÁMOS EXTRA (pl: napelem rendszer, rámpafűtés, kamera rendszer stb.)

- NAPPALI + 4 SZOBA, 2 FÜRDŐ, GALÉRIA, NAGY TERASZ, PINCE-DUPLA GARÁZS

Érd Dombosváros részén csendes, családi házas övezetben 1061m2-es saját kerttel és saját utcafronti bejárattal rendelkező belső kétszintes + pince, nappali + 4 szobás, dupla komfortos, összesen 265m2-es (+ teraszok), újszerű állapotban lévő, folyamatosan karbantartott ikerházi lakás eladó számos extrával.

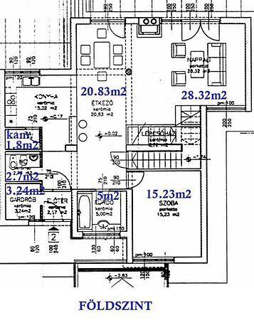
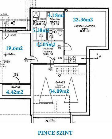
Az ingatlan szintenkénti felosztása a következő:

Pince szint: 2 gk-s garázs (34.09m2), kazán - mosókonyha (22.36m2), előtér (12.05m2), öltöző (5.38m2), wc, szauna helyiség (4.18m2), kondi terem- hobbi helyiség (19.6m2), tároló / raktár (4.42m2).

Földszint: előtér (2.7m2), gardrób (3.24m2), wc (2.7m2), fürdőszoba (5m2), kamra (1.8m2), konyha, étkező (20.83m2), nappali (28.32m2), lépcső, szoba (15.23m2), hatalmas terasz épített kemencével.

Tetőtér: lépcső (7.07m2), galéria (17.5m2), zuhanyzó (2.81m2), wc (1.69m2), 3 szoba (nettó 14.46m2, 12.42m2, 12.42m2), terasz (7.07m2).

Szerkezeti leírás: Az ingatlan 2001-ben épült beton alapra. Tégla főfalak + 12cm dryvit szigetelés. Tégla válaszfalak. A külső nyílászárók műanyag szerkezetűek, fokozott hőszigetelésű üvegezéssel. A belső nyílászárók fa szerkezetű ajtók. Cserép fedésű tető.

Közművek: víz, villany, gáz, csatorna bekötve, önálló mérőórákkal felszerelve.

Fűtés, meleg víz ellátás: Az ingatlan fűtését és meleg víz ellátását gázkazán látja el. A földszinten padlófűtés + radiátoros hőleadók, az emeleten csak radiátoros hőleadók találhatók.

Hűtés: A házban 2 db. hűtő-fűtő került felszerelésre, melyből az egyik a nappaliban, a másik a földszinti szobában található.

Parkolás: pince szinten 2 gépkocsi számára alkalmas garázsban lehetséges.

EXTRÁK: napelem rendszer éves elszámolással, riasztó, kamera rendszer, beépített konyhabútor, nappaliban kandalló, 2 db. hűtő-fűtő klíma, teraszon épített kemence, távvezérlésű utcai - és garázskapu, rámpafűtés.

Megközelíthetőség és infrastruktúra: Buszmegálló, kisbolt, játszótér pár perc sétatávolság. Óvoda, iskola, bevásárlási lehetőségek, posta, gyógyszertár, orvosi rendelők hamar elérhetőek.

További hasonló ingatlanok találhatók még a kínálatunkban!

Szüksége van hitelre? SEGÍTÜNK!

Bankfüggetlen hitel tanácsadónk díjmentesen áll az Ön rendelkezésére! Keressen bizalommal!

A hirdetésben szereplő adatok, információk, képek, alaprajzok stb... tájékoztató jellegűek! Irodánk az esetleges elírásokért felelősséget nem tud vállalni!

Tájékoztatjuk a Tisztelt Érdeklődőket, hogy az ingatlan hirdetésében szereplő telefonszám felhívásával Önök hozzájárulnak személyes adataik (név, telefonszám), a hirdetést feladó -Otthonplusz.hu Kft. - által a bizalmas kezeléshez és nyilvántartáshoz.

Töltsd fel ingatlanhirdetésed ingyenesen!

Ingyenes hirdetésfeladás
Havi több mint egymillió ingatlankereső
Egyszerű és gyors hirdetésfeladás
Hirdetésfeladás
eladó
Bakó NobertIngatlanreferens
+36 20...

Töltsd fel ingatlanhirdetésed ingyenesen!

Ingyenes hirdetésfeladás
Havi több mint egymillió ingatlankereső
Egyszerű és gyors hirdetésfeladás
Hirdetésfeladás
Bank360Bank360
Személyi kölcsön
Lakáshitel
Bankszámla
Utasbiztosítás
1 000 000 Ft50 000 000 Ft
6 hónap50 hónap