Ingatlan360 logo
  • Magánszemélyeknek
  • Közvetítőknek
  • Hirdetésfeladás
  • Árak és hirdetési lehetőségek
  • Mennyit ér az ingatlanom?
  • Ingatlan statisztikák

Eladó ikerház Érd

Érd képe
10
Érd 2. képe
Érd 3. képe10
145 M Ft
923 567 Ft / m²
157m2
Alapterület
367m2
Telekterület
4
Szoba
Fix 3%-os Otthon Start lakáshitel
Szobák száma
4
Építés éve
2025
Ingatlan állapota
Új
Emelet
nincs megadva
Parkolás
2 vagy több garázs
Légkondicionáló
Van
Közös költség
nincs megadva
Fűtés
Padlófűtés
Fal építési anyaga
Tégla
Lift
nincs megadva
Az ingatlanról:
Hivatkozzon erre, kód: 5032SZR

ÁRCSÖKKENÉS! 149.9mFt helyett 145mFt!

- ÚJ ÉPÍTÉSŰ IKERHÁZI LAKÁS

- NAPPALI + 3 SZOBA, 2 GK-S GARÁZS, TERASZ, ERKÉLY, SAJÁT KERT

- HŐSZIVATTYÚ PADLÓFŰTÉSSEL + FAN-COIL

- MEGBÍZHATÓ BERUHÁZÓ, TÖBB ÉVES TAPASZTALAT, IGÉNYES KIVITELEZÉS

Érd Parkvárosban csendes, családi házas övezetben 367m2-es saját telekkel rendelkező nappali + 3 szobás, dupla komfortos, belső kétszintes + garázs szint, összesen 156.61m2-es (teraszok felével), új építésű ikerházi lakás igény szerinti befejezéssel eladó.

Átadás: burkolatok kiválasztása után 2 hónapon belül.

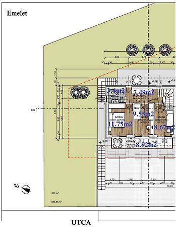
Az ingatlan szintenkénti felosztása a következő:

Garázs / utca szint (54.02m2 + 4.8m2 terasz): 2 gk-s garázs (34.91m2), közlekedő (5.66m2), gépészeti helyiség (10.72m2), tároló (2.73m2).

Földszint (37.83m2 + terasz 19m2): közlekedő (5.46m2), nappali-konyha-étkező (28.84m2), előtér (1.44m2), fürdőszoba + wc (2.09m2).

Emelet (40.86m2 + teraszok 24m2): előtér - gardrób (7.49m2), fürdőszoba + wc (3.4m2), 3 szoba (11.75m2, 9.55m2, 8.67m2).

Szerkezeti leírás: Beton alap. A főfalak Leierplan 30-as kerámia falazóelemekből készültek + 15cm dryvit szigetelés. Leierplan 10-es kerámia válaszfalak. A külső nyílászárók műanyag szerkezetűek, 3 rétegű, 5 légkamrás fokozott hőszigetelésű üvegezéssel ellátva antracit színben, beépített redőnytokkal, elektromos kiállással (redőny, szúnyogháló nincs az árban). A belső nyílászárók dekorfóliás ajtók. Terran Zenit cserép fedésű tető antracit színben. Riasztó vezetékelés, elektromos garázsajtó, elektromos nagykapu távirányítóval.

Az igény szerinti befejezésnek köszönhetően a hideg-meleg burkolatok 7000 Ft / m2 árig választhatók.

Fűtés: Az ingatlan fűtését hőszivattyús rendszer látja el, minden helyiségben padlófűtésen keresztül, illetve a nappaliban felszerelésre került 1 db. Fan-coil, amely egyaránt alkalmas fűtésre és hűtésre is.

Parkolás: garázs szinten 2 gépkocsi számára alkalmas beálló áll rendelkezésre.

Megközelíthetőség és infrastruktúra jó! Buszmegálló 5-10 perc sétatávolság. Óvoda, iskola, orvosi rendelők, gyógyszertár, bevásárlási lehetőségek szintén hamar elérhetőek.

További hasonló ingatlanok találhatók még a kínálatunkban!

Szüksége van hitelre? SEGÍTÜNK!

Bankfüggetlen hitel tanácsadónk díjmentesen áll az Ön rendelkezésére! Keressen bizalommal!

A hirdetésben szereplő adatok, információk, képek, alaprajzok stb... tájékoztató jellegűek! Irodánk az esetleges elírásokért felelősséget nem tud vállalni!

Tájékoztatjuk a Tisztelt Érdeklődőket, hogy az ingatlan hirdetésében szereplő telefonszám felhívásával Önök hozzájárulnak személyes adataik (név, telefonszám), a hirdetést feladó -Otthonplusz.hu Kft. - által a bizalmas kezeléshez és nyilvántartáshoz.

Töltsd fel ingatlanhirdetésed ingyenesen!

Ingyenes hirdetésfeladás
Havi több mint egymillió ingatlankereső
Egyszerű és gyors hirdetésfeladás
Hirdetésfeladás
eladó
Bakó NobertIngatlanreferens
+36 20...

Töltsd fel ingatlanhirdetésed ingyenesen!

Ingyenes hirdetésfeladás
Havi több mint egymillió ingatlankereső
Egyszerű és gyors hirdetésfeladás
Hirdetésfeladás
Bank360Bank360
Személyi kölcsön
Lakáshitel
Bankszámla
Utasbiztosítás
1 000 000 Ft50 000 000 Ft
6 hónap50 hónap