Ingatlan360 logo
  • Magánszemélyeknek
  • Közvetítőknek
  • Hirdetésfeladás
  • Árak és hirdetési lehetőségek
  • Mennyit ér az ingatlanom?
  • Ingatlan statisztikák

Eladó családi ház Érd

Érd képe
5
Érd 2. képe
Érd 3. képe5
115 M Ft
871 212 Ft / m²
132m2
Alapterület
1170m2
Telekterület
5
Szoba
Fix 3%-os Otthon Start lakáshitel
Szobák száma
5
Építés éve
2025
Ingatlan állapota
Új
Emelet
nincs megadva
Parkolás
Udvarban
Légkondicionáló
Nincs
Közös költség
nincs megadva
Fűtés
Padlófűtés
Fal építési anyaga
Tégla
Lift
nincs megadva
Az ingatlanról:
Hivatkozzon erre, kód: 5010SZR

- ÚJ ÉPÍTÉSŰ ÖNÁLLÓ HÁZ

- KÉT GENERÁCIÓNAK IS ALKALMAS

- NAGY AMERIKAI KONYHA-NAPPALI + 4 SZOBA, 2 FÜRDŐSZOBA

- HŐSZIVATTYÚ PADLÓFŰTÉSSEL

Érd Dombosváros részén 1170m2-es telken nagy amerikai konyha - nappalis, 4 szobás, dupla komfortos, összesen nettó 132.24m2-es (+ teraszok), két generációnak is alkalmas új építésű önálló családi ház igény szerinti befejezéssel leköthető.

Várható átadás: 2025. év vége.

Megbízható beruházó, számos referencia ingatlan!

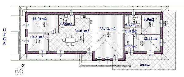
Az ingatlan felosztása a következő (132.24m2 + teraszok): elő-terasz, amerikai konyha - nappali + étkező (34.61m2 + 33.13m2), 2 fürdőszoba + wc (4.56m2, 5.47m2), előtér (3.99m2), közlekedő (3.01m2), 4 szoba (15.01m2, 10.21m2, 9.9m2, 12.35m2), terasz.

Szerkezeti leírás: Beton alap. Tégla főfalak + 15cm dryvit szigetelés. Ytong válaszfalak. A külső nyílászárók műanyag szerkezetűek, fokozott hőszigetelésű üvegezéssel. A belső nyílászárók dekorfóliás ajtók. Fa födém szigeteléssel. Cserép fedésű tető.

Az igény szerinti befejezésnek köszönhetően a hideg-meleg burkolatok választhatók a műszaki tartalomban rögzített árak szerint.

Fűtés: Az ingatlan fűtése hőszivattyús rendszerről üzemel, minden helyiségben padlófűtésen keresztül.

Parkolás: zárt udvaron belül fedetlen-felszíni beálló áll rendelkezésre.

Megközelíthetőség és infrastruktúra: Az ingatlan tömegközlekedéstől kiesőbb területen helyezkedik el, ezért legfőképp autóval rendelkezőknek ajánljuk! Gépkocsival óvoda, iskola, gyógyszertár, bevásárlási lehetőségek, orvosi rendelők 10 perc alatt elérhetők!

További hasonló ingatlanok találhatók még a kínálatunkban!

Szüksége van hitelre? SEGÍTÜNK!

Bankfüggetlen hitel tanácsadónk díjmentesen áll az Ön rendelkezésére! Keressen bizalommal!

A hirdetésben szereplő adatok, információk, képek, alaprajzok stb... tájékoztató jellegűek! Irodánk az esetleges elírásokért felelősséget nem tud vállalni!

Tájékoztatjuk a Tisztelt Érdeklődőket, hogy az ingatlan hirdetésében szereplő telefonszám felhívásával Önök hozzájárulnak személyes adataik (név, telefonszám), a hirdetést feladó -Otthonplusz.hu Kft. - által a bizalmas kezeléshez és nyilvántartáshoz.

Töltsd fel ingatlanhirdetésed ingyenesen!

Ingyenes hirdetésfeladás
Havi több mint egymillió ingatlankereső
Egyszerű és gyors hirdetésfeladás
Hirdetésfeladás
eladó
Bakó NobertIngatlanreferens
+36 20...

Töltsd fel ingatlanhirdetésed ingyenesen!

Ingyenes hirdetésfeladás
Havi több mint egymillió ingatlankereső
Egyszerű és gyors hirdetésfeladás
Hirdetésfeladás
Bank360Bank360
Személyi kölcsön
Lakáshitel
Bankszámla
Utasbiztosítás
1 000 000 Ft50 000 000 Ft
6 hónap50 hónap