Ingatlan360 logo
  • Magánszemélyeknek
  • Közvetítőknek
  • Hirdetésfeladás
  • Árak és hirdetési lehetőségek
  • Mennyit ér az ingatlanom?
  • Ingatlan statisztikák

Eladó családi ház PARKVÁROS - FANEVES, Érd

PARKVÁROS - FANEVES, Érd képe
20
PARKVÁROS - FANEVES, Érd 2. képe
PARKVÁROS - FANEVES, Érd 3. képe20
198 M Ft
1 015 385 Ft / m²
195m2
Alapterület
850m2
Telekterület
5
Szoba
Szobák száma
5
Építés éve
nincs megadva
Ingatlan állapota
Jó állapotú
Emelet
nincs megadva
Parkolás
1 garázs
Légkondicionáló
Nincs
Közös költség
nincs megadva
Fűtés
Cirkófűtés
Fal építési anyaga
Tégla
Lift
Nincs
Az ingatlanról:
--- ÉRD PARKVÁROSBAN, FANEVES UTCÁBAN TALÁLHATÓ, 2 GENERÁCIÓS CSALÁDI HÁZ KERESI ÚJ TULAJDONOSÁT ---

KÖRNYÉK:
ÉRD egyik legjobb részén található az ingatlan. Csendes, nyugodt mellékutca, rendezett környék, jó szomszédság.
Közlekedése kiváló. Pár perc sétával elérhető a buszmegálló, mely a Bem térig vagy BP Kelenföldi pályaudvarig közlekedik.
Autóval 15 perc alatt BP-en lehet.

HÁZ:
KÉT GENERECIÓS, A KÉT LAKÁS KÉT KÜLÖN SZINTEN TALÁLHATÓ. MINDKETTŐ KÖZVETLEN KERTKAPCSOLATOS.
A ház szigetelt, stabil. Műszaki és statikai problémája nincsen.
Fűtése gázcirkó, padlófűtéssel a hidegburkolatos helyiségekben és radiátorral a szobákban.

Az ingatlan külső állapota jó, a beltér egyedi ízlés alapján felújítandó.

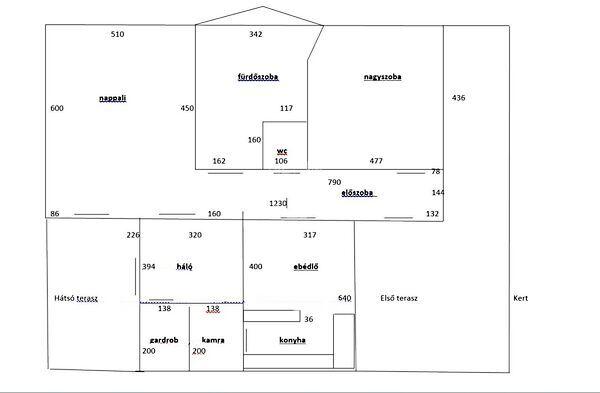
EMELETI LAKÁS lakótere 130 nm.
Helyiségei:
- Konyha étkezővel
- Nappali
- 2 hálószoba
- Fürdőszoba
- WC
- Terasz és erkély kapcsolat

AZ EMELETI LAKÁS TETŐTERE BEÉPITHETŐ, TOVÁBB NŐVELVE A LAKÓTERET.

ALSÓ SZINT
Itt található a DUPLA GARÁZS, 20 nm TÁROLÓ és a 62 nm LAKÁS

LAKÁS HELYISÉGEI:
- Amerikai konyhás nappali
- Hálószoba
- Fürdőszoba

TELEK 850 nm
A kert gyönyörű, igazi kikapcsolódás az egész család számára, de külön hasznosítás esetén a kert is jól elszeparálható.
Szép fű, parkosított virágos kert.
A telek adottságai miatt mindkét lakásból közvetlen kertkapcsolat élvezhető.

Az ingatlan per-, teher- és igénymentes, 3 hónapos birtokbaadási határidővel költözhető.

További információkért, vagy megtekintéssel kapcsolatban keressen bizalommal!

AMENNYIBEN NEM RENDELKEZIK A TELJES VÉTELÁRRAL, segítünk Önnek megtalálni a legjobb megoldást!
BANKFÜGGETLEN hitelcentrumunk minden elérhető bank és hitelintézet ajánlatát versenyezteti az Ön kedvéért, ráadásul díjmentesen. Önnek nincs más dolga, mint elbeszélgetni munkatársunkkal, aki a hallott információk alapján versenyre hívja a bankokat, hogy Ön hosszú távon is a legjobb konstrukciót kaphassa. A legjobb ajánlatokból végül Ön választhatja ki a nyertest. Munkatársaink sokéves szakmai tapasztalattal várják Önt, előre egyeztetve akár a normál munkaidő után is. ...TOVÁBBI, TÖBBEZRES INGATLAN KÍNÁLAT: www.gdn-ingatlan.hu - GDN azonosító: 376510

Töltsd fel ingatlanhirdetésed ingyenesen!

Ingyenes hirdetésfeladás
Havi több mint egymillió ingatlankereső
Egyszerű és gyors hirdetésfeladás
Hirdetésfeladás
eladó
Dora KrisztaIngatlanreferens
+36 70...
iroda logo
GDN IngatlanhálózatIroda további hirdetései

Töltsd fel ingatlanhirdetésed ingyenesen!

Ingyenes hirdetésfeladás
Havi több mint egymillió ingatlankereső
Egyszerű és gyors hirdetésfeladás
Hirdetésfeladás
Bank360Bank360
Személyi kölcsön
Lakáshitel
Bankszámla
Utasbiztosítás
1 000 000 Ft50 000 000 Ft
6 hónap50 hónap