Ingatlan360 logo
  • Magánszemélyeknek
  • Közvetítőknek
  • Hirdetésfeladás
  • Árak és hirdetési lehetőségek
  • Mennyit ér az ingatlanom?
  • Ingatlan statisztikák

Eladó panel lakás Győr

Győr képe
9
Győr 2. képe
Győr 3. képe9
46 M Ft
867 925 Ft / m²
53m2
Alapterület
2
Szoba
Fix 3%-os Otthon Start lakáshitel
Szobák száma
2
Építés éve
nincs megadva
Ingatlan állapota
nincs megadva
Emelet
nincs megadva
Parkolás
nincs megadva
Légkondicionáló
Nincs
Közös költség
nincs megadva
Fűtés
Egyéb
Fal építési anyaga
nincs megadva
Lift
Nincs
Az ingatlanról:
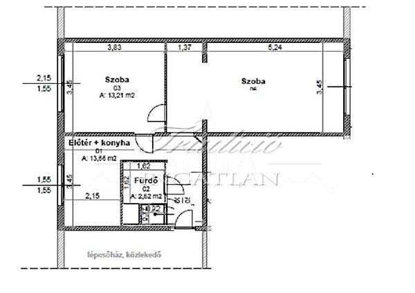
A KASSÁK LAJOS UTCÁBAN 2 SZOBA HALLOS, 53 NM-ES, 3. EMELETI LAKÁS, GARÁZSVÁSÁRLÁSI LEHETŐSÉGGEL ELADÓ!

Csak a Tradíció Ingatlan kínálatában!

Adyváros kedvelt utcájában, a Kassák Lajos utcában kínálom eladásra ezt a 4 emeletes paneltömb, 3. emeletén lévő, 2 szoba hallos, 53 nm-es jó állapotú panel lakást.
Az ingatlan pár évvel ezelőtt egy felújításon esett át, ekkor a fürdőszoba felújításán kívül új konyhabútor, korszerű, redőnnyel szerelt műanyag nyílászárók lettek beépítve, valamint az elektromos hálózat is kapott egy részleges felújítást.
A társasház gazdaságos fűtéséről a Távhő gondoskodik, a lakás már fűtés korszerűsített, egyedi mérőórákkal szerelt. A közös költség mindössze 10500 Ft.
A lakás közös tárolóval rendelkezik.
Az ingatlanhoz igény esetén garázs is vásárolható, melynek az ára 11 M Ft.
A Gress lappal burkolt jó állapotú garázs saját, igény esetén bővíthető, 16 Amperes villanyórával rendelkezik.

Az ingatlan per, teher és igénymentes, akár azonnal birtokba vehető.
Az ingatlannal kapcsolatban részletekért, bővebb információkért és megtekintésért kérem HÍVJON!

( a kulcs nálam, így szinte bármikor megtekinthető)

A Tradíció Ingatlaniroda az alábbi szolgáltatásokkal áll az ügyfelek rendelkezésére:
- lakossági és ipari ingatlanok értékesítése és bérbeadása
- díjmentes pénzügyi tanácsadás, hitelügyintézés (lakáshitelek, állami támogatások (CSOK, ÁFA) Babaváró hitel, személyi kölcsön, Lakástakarék)
- jogi háttérrel adásvételi szerződések készítése kedvező feltételekkel
- energetikai tanúsítvány készítése
- ingatlan értékbecslése
Lakások, családi házak, egyéb ingatlanok teljeskörű felújítását, átépítését, külső szigetelését vállaljuk.
Ha eladó vagy kiadó ingatlannal rendelkezik, akkor kérem keressen!

Rosenbecker Tamás

Töltsd fel ingatlanhirdetésed ingyenesen!

Ingyenes hirdetésfeladás
Havi több mint egymillió ingatlankereső
Egyszerű és gyors hirdetésfeladás
Hirdetésfeladás
eladó
Rosenbecker TamásIngatlanreferens
+36 20...

Töltsd fel ingatlanhirdetésed ingyenesen!

Ingyenes hirdetésfeladás
Havi több mint egymillió ingatlankereső
Egyszerű és gyors hirdetésfeladás
Hirdetésfeladás
Bank360Bank360
Személyi kölcsön
Lakáshitel
Bankszámla
Utasbiztosítás
1 000 000 Ft50 000 000 Ft
6 hónap50 hónap